Vrieling Makelaars gebruikt cookies om de website naar behoren te laten werken, om functies voor social media te bieden en om onze website te analyseren. Op onze website kun je ons Cookiebeleid en AVG & Privacybeleid vinden.

Goidschalxoordsedijk 51
Heinenoord

LANDELIJK WONEN OP RUIM 7.000M² EIGEN GROND AAN DE KREEK NAAST DE MOLEN VAN GOIDSCHALXOORD

SFEERVOL GERENOVEERD FAMILIEHUIS UIT 1897 MET ALLE RUIMTE VOOR DIEREN EN BUITENLEVEN
...

Woonoppervlakte
215m²

Omschrijving

LANDELIJK WONEN OP RUIM 7.000M² EIGEN GROND AAN DE KREEK NAAST DE MOLEN VAN GOIDSCHALXOORD

SFEERVOL GERENOVEERD FAMILIEHUIS UIT 1897 MET ALLE RUIMTE VOOR DIEREN EN BUITENLEVEN

Wat een plek. Wat een huis. Aan de voet van de dijk, met schilderachtige vergezichten over de Hoeksche Waardse polder, direct grenzend aan het water van de Kreek op loopafstand van de Oude Maas. Goidschalxoordsedijk 51 is zo’n woning die je zelden ziet: authentiek, royaal, energiezuinig en gelegen op een uitzonderlijk breed dijkperceel met ruim 7.000m² eigen grond. Ideaal voor dierenliefhebbers en een garantie voor onbeperkt buitenspeelplezier. De woning uit 1897 kreeg in 2007 een grote uitbouw aan de achterzijde en is sindsdien zorgvuldig en smaakvol gerenoveerd. En indien nodig, sta je binnen 20 minuten in het centrum van Rotterdam.

VAKMANSCHAP
Deze sfeervolle dijkwoning heeft een mansardekap, karakteristieke stalramen en het warme gevoel van een historische boerderijwoning. Veel energiebesparende maatregelen maken het plaatje compleet, want met energielabel A++ is dit een van de meest duurzame woningen in zijn categorie. De woning beschikt onder andere over een warmtepomp, 28 zonnepanelen en een volledig gerenoveerde, geïsoleerde kap met nieuwe dakkapellen. De stalramen in de buitenmuren zijn opnieuw vervaardigd in oude stijl en uitgevoerd met HR++ glas. Het geheel ademt sfeer en is tegelijkertijd comfortabel, energiezuinig en toekomstbestendig.

BENEDENHUIS
Het benedenhuis verrast door ruimte en sfeer. In de uitbouw uit 2007 bevindt zich de royale woonkeuken van VT Wonen met vloerverwarming, ruimte voor een grote eettafel, een hoge werkplek aan de wand en een sfeervolle keuken met eiken kastwerk, granieten werkblad, kookeiland met plafondafzuiging, vaatwasser en veel bergruimte. Het fornuis met oven is de enige plek in de woning waar nog gas wordt gebruikt. Met twee treden omhoog kom je in de knusse woonkamer met balkenplafond en de karaktervolle stalramen. Vanuit zowel de woonkeuken als woonkamer stap je zo de uitgestrekte tuin in. Op deze verdieping vind je verder een toilet, praktische bergruimte, de ruime opstelplaats voor wasmachine en droger en nog een aparte werkhoek.

DIJKNIVEAU
Op dijkniveau ligt de entree met vernieuwde meterkast met krachtstroom en glasvezel. Hier bevindt zich ook extra bergruimte. De riante ouderslaapkamer met eigen zithoek c.q. werkruimte is een bijzonder comfortabele ruimte met glad stucwerk, eiken vloerdelen, inloopkast, airconditioning en directe toegang tot het grote dakterras. Een heerlijke plek om je even terug te trekken. De en-suite badkamer is modern uitgevoerd met inloopdouche, toilet, mooi wastafelmeubel en elektrische vloerverwarming.

SLAPEN
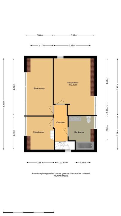
Op de eerste verdieping liggen drie leuke en sfeervolle slaapkamers. De houten spantconstructie is in alle kamers zichtbaar en de ruimtes zijn fraai afgewerkt met kraalschroten, paneeldeuren, houtaccenten en weer een karakteristiek stalraam. Elke kamer heeft zijn eigen identiteit. Een kamer heeft een speelzolder, tevens te gebruiken als hoogslaper, een andere een bedstee en de derde is uitzonderlijk ruim met zicht op de molen en de oude Maas. Alle kamers zijn voorzien van airconditioning. De vloeren zijn uitgevoerd in strak kunststof in een warme grijsbruine tint. De luxe badkamer op deze verdieping beschikt over een ligbad met douche, een toilet en een steigerhouten wastafelmeubel met dubbele waskom.

PAARDEN & DIEREN
Het perceel is uitzonderlijk breed en grotendeels vlak, waardoor de mogelijkheden voor dieren en paarden en/of een moestuin uitstekend zijn. Het geheel is omheind en aan de dijkzijde afgezet met een strak houten hekwerk. Er is een container in gebruik als dierenstal en opslag voor tuinmeubelen, een eenvoudige rijbak en volop ruimte voor weides, paddocks of speelveld. De ligging aan het water en het vrije uitzicht maken het geheel extra bijzonder. Er is een dubbele houten schuur met stroom die wordt gebruikt als klus- en werkruimte, opslag en fietsenstalling.

RUST & RUIMTE
Dit is een plek waar elke dag voelt als weekend. Terwijl je uitkijkt over het water, staat aan het einde van het perceel de Molen van Goidschalxoord prachtig in beeld. De tuin is ruimtelijk opgezet met terrassen, borders, zonplekken en biedt veel privacy. Het grote dakterras bij de ouderslaapkamer vormt een extra leefruimte met indrukwekkend zicht over eigen grond en polder. Parkeren kan royaal op eigen terrein met plek voor minimaal vijf auto’s en twee eigen laadpunten voor elektrische voertuigen.

GOED OM TE WETEN
- Bouwjaar 1897
- Woonoppervlakte 215m²
- Dakterras 55m²
- Externe bergruimte 52m²
- Perceel 7.015m² eigen grond
- Energielabel A++
- Warmtepomp en 28 zonnepanelen
- Kap vernieuwd, geïsoleerd en voorzien van nieuwe dakkapellen
- Nagenoeg geheel voorzien van dubbel glas, grotendeels HR++
- Uitbouw gerealiseerd in 2007
- Schilderwerk buiten 2025
- Grote dubbele houten schuur met stroom
- Rijbak aanwezig
- Kleine strook langs water in eigendom van waterschap of gemeente
- Parkeren op eigen terrein voor minimaal 5 auto's
- Twee eigen laadpunten voor elektrische voertuigen
- Oplevering in overleg

BIJZONDERHEDEN
* Vanaf 1 januari 2023 zijn makelaars wettelijk verplicht een biedlogboek bij te houden bij de verkoop van bestaande woningen (en wanneer de koper en/of de verkoper een particulier is). Biedingen kun je per die datum, en indien gewenst, nog steeds mondeling met ons bespreken maar dien je daarna digitaal aan ons te bevestigen via jouw MOVE-account. Het biedlogboek is niet van toepassing bij de verkoop van nieuwbouw, recreatiewoningen, bedrijfswoningen, garageboxen, bouwkavels, woon-/bedrijfspanden en (agrarische) bedrijfsobjecten zonder woonbestemming.
* Bij het sluiten van een koopovereenkomst verklaar je je akkoord dat ondertekening van de koopovereenkomst digitaal plaatsvindt (met iDIN identificatie) door gebruikmaking van het platform van ondertekenen.nl.
* De koopovereenkomst wordt opgesteld conform het meest recente model dat is vastgesteld door de NVM, de Consumentenbond en Vereniging Eigen Huis en aangevuld met enkele aanvullende artikelen waaronder (maar niet uitsluitend) een ouderdoms-clausule, een clausule over de Meetinstructie, een clausule over de erfgrenzen en een clausule over de onderzoeksplicht van koper.
* Vanzelfsprekend staat het je vrij om, indien gewenst, een bouwkundige uit te nodigen de woning bouwkundig voor je te keuren teneinde jezelf een goed beeld te kunnen vormen van de bouwkundige staat van de woning.

HOEKSCHE WAARD
De Hoeksche Waard is een eiland ten zuiden van Rotterdam met een oppervlakte van 27.420 hectare, telt ruim 88.000 inwoners en is sinds 2019 samengevoegd in 1 gelijknamige gemeente. Door de status van “Nationaal Landschap” is haar open en landelijk karakter op de lange termijn verzekerd en door de versterking van natuurwaarden zal het er altijd goed wonen blijven.

HEINENOORD
Het gemoedelijke dorp Heinenoord heeft haar ongeveer 3500 inwoners veel te bieden. Er is nog een sfeer van saamhorigheid en men zegt elkaar op straat vriendelijk gedag. Waar vind je dat nog? In het gezellige buurtwinkelcentrum, waar klantvriendelijkheid gewoon is, kunt u prima terecht voor de dagelijkse boodschappen en net buiten de dorpskern treft u koopcentrum De Witte Boerderij met o.a. de Action, Kruidvat en Nettorama. Naast basisscholen is er een kinderdagverblijf met naschoolse opvang in het dorpscentrum. Er is een rijk verenigingsleven, een goed georganiseerde voetbalvereniging en in de sporthal zijn er tal van mogelijkheden de conditie op peil te houden. Bezienswaardigheden vindt u in het streekmuseum, ook de fraai gerestaureerde molen, de watertoren en de scheve toren van de Hervormde kerk zijn een bezienswaardigheid. In het vroegere gemeentehuis bevindt zich thans een prima restaurant genaamd ’t Land van Wale, waar u in een prettige sfeer van een lunch of uitgebreid diner kunt genieten. Rotterdam ligt op 15 autominuten en Rotterdam-Zuid, Spijkenisse, Barendrecht en Ridderkerk op fietsafstand.

OUD-BEIJERLAND
Oud-Beijerland vervult al jarenlang een centrumfunctie in de Hoeksche Waard. In het historische centrum met de authentieke sfeer van een dorp vindt u naast de landelijke ketens een groot aantal speciaalzaken, vers-winkels en een rijk horeca aanbod. Ook scholen zijn er in ruime mate, tot en met voortgezet- en bijzonder onderwijs. De liefhebber van natuur en buitenleven kan zijn hart ophalen langs het Spui en de Oude Maas en genieten van grazende Schotse Hooglanders en Konic-paarden maar ook even uitblazen in het natuurbezoekerscentrum “Klein Profijt”. Kortom: in dit dorp dat in 2009 haar 450-jarig bestaan vierde, reiken traditie en vernieuwing elkaar de hand. Hier vindt u ondernemers die nog vakmensen zijn, een rijk verenigingsleven, sportverenigingen en bovenal een vriendelijke woonsfeer.

ENTHOUSIAST?
Maak gerust een afspraak voor een vrijblijvende bezichtiging en bekijk onze website voor extra informatie over ons kantoor.

EIGEN NVM MAKELAAR
Vrieling Makelaars behartigt de belangen van de verkopende partij. Ons advies bij het kopen van jouw nieuwe woning is dan ook om je eigen NVM-aankoopmakelaar mee te nemen.

TOT SLOT
Deze presentatie is met zorg samengesteld, onder andere (maar niet uitsluitend) aan de hand van de door opdrachtgever (verkoper/verhuurder) aan makelaar verstrekte gegevens en tekeningen. Desondanks kunnen aan deze presentatie geen rechten worden ontleend en aanvaardt de makelaar of zijn opdrachtgever (verkoper/verhuurder) geen enkele aansprakelijkheid voor enige onvolledigheid, onjuistheid of anderszins -dan wel de gevolgen daarvan- van de in deze presentatie verstrekte informatie of elke andere aan de (kandidaat) koper of huurder (of andere belanghebbende) verstrekte informatie m.b.t. het te koop (of te huur) aangeboden object. Alle opgegeven maten en oppervlakten zijn daarnaast slechts indicatief. Mocht deze presentatie of andere verstrekte informatie m.b.t. het te koop (of te huur) aangeboden object vragen oproepen, dan nodigen wij je van harte uit deze onder onze (makelaar) aandacht te brengen.

THUIS IN DE REGIO, THUIS IN DE STAD
DÉ MAKELAAR VOOR DE HOEKSCHE WAARD & ROTTERDAM

Kenmerken

Overdracht

Prijs
€ 1.150.000,- k.k.
Status
Beschikbaar
Oplevering
In overleg

Bouw

Soort woonhuis
Eengezinswoning, Vrijstaande woning
Soort bouw
Bestaande bouw
Bouwjaar
1897
Onderhoud binnen
Goed
Onderhoud buiten
Goed

Oppervlakten en inhoud

Woonoppervlakte
215m²
Perceeloppervlakte
7.015m²
Inhoud
650m³

Indeling

Aantal kamers
6
Aantal slaapkamers
4
Aantal badkamers
2
Aantal verdiepingen
3
Voorzieningen
Airconditioning, Zonnepanelen, Natuurlijke ventilatie

Energie

Energielabel
A++
Isolatie
Dakisolatie, Grotendeels dubbelglas
Verwarming
Vloerverwarming gedeeltelijk

Buitenruimte

Ligging
Aan het water, Aan rustige weg, Vrij uitzicht, Open ligging, Buiten bebouwde kom, Landelijk gelegen
Tuin
Achtertuin
Achtertuin
Zuidwest, 6000m², 4000×15000cm

Garage

Soort garage
Vrijstaand hout
Capaciteit
2

Locatie

[ { "address": "Goidschalxoordsedijk 51", "zipCode": "3274 BG", "city": "Heinenoord", "lat": 51.8277036, "lng": 4.453993, "heading": 0, "pitch": 0 } ]
[ { "featureType": "all", "elementType": "labels.text.fill", "stylers": [ { "saturation": 36 }, { "color": "#333333" }, { "lightness": 40 } ] }, { "featureType": "all", "elementType": "labels.text.stroke", "stylers": [ { "visibility": "on" }, { "color": "#ffffff" }, { "lightness": 16 } ] }, { "featureType": "all", "elementType": "labels.icon", "stylers": [ { "visibility": "off" } ] }, { "featureType": "administrative", "elementType": "geometry.fill", "stylers": [ { "color": "#fefefe" }, { "lightness": 20 } ] }, { "featureType": "administrative", "elementType": "geometry.stroke", "stylers": [ { "color": "#fefefe" }, { "lightness": 17 }, { "weight": 1.2 } ] }, { "featureType": "administrative.locality", "elementType": "labels.text.fill", "stylers": [ { "color": "#ff0000" } ] }, { "featureType": "landscape", "elementType": "geometry", "stylers": [ { "color": "#f5f5f5" }, { "lightness": 20 } ] }, { "featureType": "poi", "elementType": "geometry", "stylers": [ { "color": "#f5f5f5" }, { "lightness": 21 } ] }, { "featureType": "poi.park", "elementType": "geometry", "stylers": [ { "color": "#dedede" }, { "lightness": 21 } ] }, { "featureType": "road.highway", "elementType": "geometry.fill", "stylers": [ { "color": "#ffffff" }, { "lightness": 17 } ] }, { "featureType": "road.highway", "elementType": "geometry.stroke", "stylers": [ { "color": "#ffffff" }, { "lightness": 29 }, { "weight": 0.2 } ] }, { "featureType": "road.arterial", "elementType": "geometry", "stylers": [ { "color": "#ffffff" }, { "lightness": 18 } ] }, { "featureType": "road.local", "elementType": "geometry", "stylers": [ { "color": "#ffffff" }, { "lightness": 16 } ] }, { "featureType": "transit", "elementType": "geometry", "stylers": [ { "color": "#f2f2f2" }, { "lightness": 19 } ] }, { "featureType": "water", "elementType": "geometry", "stylers": [ { "color": "#e9e9e9" }, { "lightness": 17 } ] } ]

Zonnewijzer

Uw browser ondersteunt geen WebGL

Plattegronden

Interesse in deze woning?

Bel direct voor het maken van een afspraak of laat je gegevens achter.
Dan nemen wij contact met je op.

 

Uw bericht is naar ons verzonden. Wij nemen zo snel mogelijk contact met u op.

Er is iets mis gegaan met het versturen van het formulier.
Controleer of u alle velden (goed) heeft ingevoerd en probeer het nog een keer.

DANNY VAN BERKEL

DANNY VAN BERKEL

Beëdigd makelaar/taxateur o.z.

info@vrielingmakelaars.nl