Vrieling Makelaars gebruikt cookies om de website naar behoren te laten werken, om functies voor social media te bieden en om onze website te analyseren. Op onze website kun je ons Cookiebeleid en AVG & Privacybeleid vinden.

Lokkertsemolenweg 64
Hoogvliet Rotterdam

GERENOVEERD 3-KAMERAPPARTEMENT OP EEN FIJNE LOCATIE IN HOOGVLIET ROTTERDAM
Aan de Lokkertsemolenweg in Hoogvliet Rotterdam bevindt zich dit goed onderhouden en instapklare appartement met...

Woonoppervlakte
74m²

Omschrijving

GERENOVEERD 3-KAMERAPPARTEMENT OP EEN FIJNE LOCATIE IN HOOGVLIET ROTTERDAM
Aan de Lokkertsemolenweg in Hoogvliet Rotterdam bevindt zich dit goed onderhouden en instapklare appartement met twee slaapkamers. De woning is in 2022 volledig gerenoveerd, waarbij onder andere de keuken, badkamer en het toilet zijn vernieuwd en de wanden strak zijn afgewerkt. Hierdoor beschikt het appartement over een moderne uitstraling en een verzorgde afwerking.

De woning is volledig voorzien van een antracietgrijze laminaatvloer, wat zorgt voor een rustige en eigentijdse basis. Daarnaast zijn alle ramen uitgevoerd met dubbele beglazing, wat bijdraagt aan een prettig wooncomfort. Bij het appartement hoort tevens een eigen berging, ideaal voor het opbergen van fietsen en extra spullen. Daarnaast is er voldoende vrije parkeergelegenheid direct voor de deur.

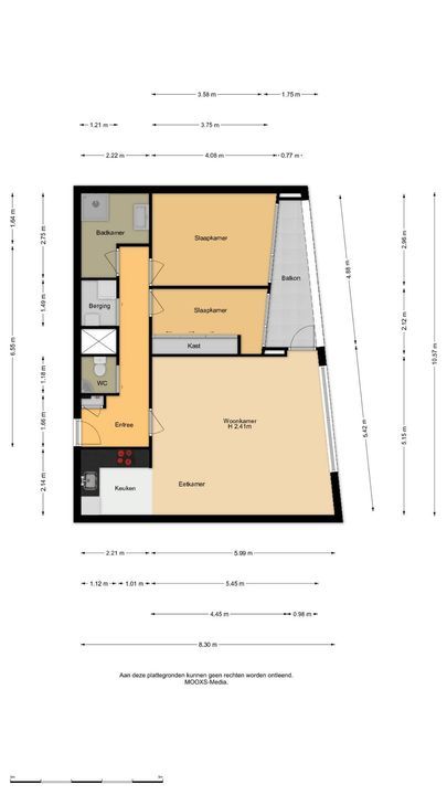
INDELING EN WOONCOMFORT
Via de binnenkomsthal heb je toegang tot vrijwel alle vertrekken van de woning. Vanuit hier stap je de ruime en lichte woonkamer binnen, die het hart van het appartement vormt. Dankzij de grote raampartijen komt er veel natuurlijk licht binnen, wat zorgt voor een aangename en open sfeer.

De woonkamer biedt voldoende ruimte voor een comfortabele zithoek en een eethoek. Vanuit de woonkamer heb je direct toegang tot het balkon, waar je heerlijk kunt genieten van de buitenlucht.

KEUKEN
Aansluitend aan de woonkamer bevindt zich de open keuken. Deze is in 2022 vernieuwd en heeft een moderne uitstraling dankzij de antracietgrijze keukenfronten. De keuken is uitgevoerd met een kunststof werkblad en beschikt over diverse inbouwapparatuur, waaronder een kleine vaatwasser, een combi-oven, een 4-pits inductiekookplaat, een koelkast en een spoelbak.

SLAAPKAMERS EN BADKAMER
De eerste slaapkamer bevindt zich aan de achterzijde van de woning en kijkt uit over het terras. Deze kamer is ideaal te gebruiken als kinderkamer, studeerkamer of hobbyruimte en vormt een fijne rustige plek binnen het appartement. De tweede slaapkamer is de grootste slaapkamer van de woning en heeft een mooi formaat als master bedroom. De grote raampartij zorgt hier voor een fijne lichtinval en een aangename sfeer.

De badkamer is in 2022 volledig vernieuwd en modern uitgevoerd. De ruimte is voorzien van grijze wand- en vloertegels, een designradiator, een stijlvolle zwarte douchecabine met zowel een handdouche als een regendouche en een wastafelmeubel met houtlook afwerking.

Het separate toilet is eveneens modern afgewerkt met grijze wand- en vloertegels en beschikt over een hangend toilet en een wastafel.

WASRUIMTE
De wasruimte is een praktische ruimte met mechanische ventilatie en biedt plaats voor zowel een wasmachine als een droger. Tevens bevindt zich hier de cv-ketel en is er extra ruimte voor opslag.

LIGGING
De Lokkertsemolenweg is gelegen in een prettige woonomgeving in Hoogvliet Rotterdam met diverse voorzieningen in de nabijheid. Winkels, openbaar vervoer, scholen en groenvoorzieningen zijn op korte afstand bereikbaar, waardoor het een praktische en comfortabele woonlocatie is.

EEN INSTAPKLAAR APPARTEMENT
Dit appartement combineert een moderne afwerking met een praktische indeling en twee slaapkamers. Dankzij de renovatie in 2022 is de woning direct te betrekken en vormt het een ideale plek voor starters of kleine huishoudens die op zoek zijn naar comfortabel wonen in Hoogvliet Rotterdam.

ALGEMEEN
- Bouwjaar: 2000
- Type woning: appartement
- Woonoppervlakte: circa 74 m²
- Erfpacht afgekocht tot 11-01-2049
- Erfpacht looptijd tot 11-01-2098
- Energielabel: A
- Verwarming: middels cv-installatie
- Warm water: middels cv-installatie
- CV-ketel: Vaillant 2012
- Beglazing: dubbele beglazing
- VvE-bijdrage: € 179,76 p/m
- Voor afmetingen zie plattegronden
- Oplevering in overleg

BIJZONDERHEDEN
- De verkoop van deze woning vindt plaats conform het door de NVM vastgestelde Protocol Transparant Bieden Woonruimte. Vrieling Makelaars maakt hierbij gebruik van het digitale biedplatform MOVE, inclusief een biedlogboek.
- Biedingen worden uitgebracht via MOVE. Biedingen die buiten MOVE worden gedaan, worden uitsluitend in behandeling genomen indien en voor zover deze digitaal via MOVE zijn bevestigd.
- De koopovereenkomst wordt opgesteld op basis van het door de NVM gehanteerde model.
- De koopovereenkomst wordt aangevuld met één of meerdere aanvullende clausules, afhankelijk van het type object, het bouwjaar, het gebruik en de feitelijke situatie. Hierbij kan onder meer gedacht worden aan een ouderdomsclausule, een niet-bewoningsclausule, een clausule inzake de meetmethode / meetinstructie, een clausule inzake de onderzoeksplicht van koper, een clausule waarin wordt vastgelegd of koper voorafgaand aan het uitbrengen van een bod een bouwkundige keuring heeft laten uitvoeren, dan wel daarvan uitdrukkelijk heeft afgezien, alsmede een clausule inzake eventuele bouwplannen en/of voorgenomen verbeteringen en, indien van toepassing, een clausule inzake het recht van erfpacht en de daarop van toepassing zijnde voorwaarden.
- Ondertekening van de koopovereenkomst vindt digitaal plaats.

ENTHOUSIAST?
Maak gerust een afspraak voor een vrijblijvende bezichtiging en bekijk onze website voor aanvullende informatie over ons kantoor en onze werkwijze.

EIGEN NVM MAKELAAR
Vrieling Makelaars behartigt de belangen van de verkopende partij. Wij adviseren je daarom bij de aankoop van een woning een eigen NVM-aankoopmakelaar in te schakelen, die jouw belangen behartigt.

TOT SLOT
Deze presentatie is met zorg samengesteld op basis van de bij Vrieling Makelaars beschikbare informatie, waaronder gegevens afkomstig van de verkoper, openbare bronnen en overige beschikbare documentatie. Desondanks kan niet worden uitgesloten dat de inhoud onvolledig of onjuist is. Aan deze presentatie kunnen geen rechten worden ontleend. Koper wordt uitdrukkelijk uitgenodigd om de verstrekte informatie te controleren, nadere vragen te stellen en waar nodig aanvullend onderzoek te laten verrichten, in het bijzonder bij zaken die voor koper essentieel zijn bij de aankoopbeslissing, zoals onder meer juridische rechten, bouwkundige staat, bestemmingsplan- en gebruiksmogelijkheden. Opgegeven maten en oppervlakten zijn indicatief en gemeten conform de geldende meetinstructie. Indien voor koper onzekerheden bestaan, adviseren wij deze vóór het uitbrengen van een bod te verifiëren.

THUIS IN DE REGIO, THUIS IN DE STAD
DÉ MAKELAAR VOOR DE HOEKSCHE WAARD & ROTTERDAM

Kenmerken

Overdracht

Prijs
€ 345.000,- k.k.
Bijdrage VVE
€ 180,-
Status
Verkocht onder voorbehoud
Oplevering
In overleg

Bouw

Soort appartement
Bovenwoning, Appartement
Woonlaag
5
Soort bouw
Bestaande bouw
Bouwjaar
2000
Onderhoud binnen
Goed
Onderhoud buiten
Goed

Oppervlakten en inhoud

Woonoppervlakte
74m²
Inhoud
222m³

Indeling

Aantal kamers
3
Aantal slaapkamers
2
Aantal badkamers
1
Aantal verdiepingen
1
Voorzieningen
Mechanische ventilatie, Lift, Natuurlijke ventilatie

Energie

Energielabel
A
Warm water
C.V.-ketel
Verwarming
C.V.-ketel
Ketel
Vaillant (2012, Combi-ketel, Eigendom)

Buitenruimte

Ligging
Vrij uitzicht
Balkon
Ja
Faciliteiten schuur
Voorzien van elektra

Garage

Locatie

[ { "address": "Lokkertsemolenweg 64", "zipCode": "3194 WC", "city": "Hoogvliet Rotterdam", "lat": 51.8661227, "lng": 4.3656431, "heading": 0, "pitch": 0 } ]
[ { "featureType": "all", "elementType": "labels.text.fill", "stylers": [ { "saturation": 36 }, { "color": "#333333" }, { "lightness": 40 } ] }, { "featureType": "all", "elementType": "labels.text.stroke", "stylers": [ { "visibility": "on" }, { "color": "#ffffff" }, { "lightness": 16 } ] }, { "featureType": "all", "elementType": "labels.icon", "stylers": [ { "visibility": "off" } ] }, { "featureType": "administrative", "elementType": "geometry.fill", "stylers": [ { "color": "#fefefe" }, { "lightness": 20 } ] }, { "featureType": "administrative", "elementType": "geometry.stroke", "stylers": [ { "color": "#fefefe" }, { "lightness": 17 }, { "weight": 1.2 } ] }, { "featureType": "administrative.locality", "elementType": "labels.text.fill", "stylers": [ { "color": "#ff0000" } ] }, { "featureType": "landscape", "elementType": "geometry", "stylers": [ { "color": "#f5f5f5" }, { "lightness": 20 } ] }, { "featureType": "poi", "elementType": "geometry", "stylers": [ { "color": "#f5f5f5" }, { "lightness": 21 } ] }, { "featureType": "poi.park", "elementType": "geometry", "stylers": [ { "color": "#dedede" }, { "lightness": 21 } ] }, { "featureType": "road.highway", "elementType": "geometry.fill", "stylers": [ { "color": "#ffffff" }, { "lightness": 17 } ] }, { "featureType": "road.highway", "elementType": "geometry.stroke", "stylers": [ { "color": "#ffffff" }, { "lightness": 29 }, { "weight": 0.2 } ] }, { "featureType": "road.arterial", "elementType": "geometry", "stylers": [ { "color": "#ffffff" }, { "lightness": 18 } ] }, { "featureType": "road.local", "elementType": "geometry", "stylers": [ { "color": "#ffffff" }, { "lightness": 16 } ] }, { "featureType": "transit", "elementType": "geometry", "stylers": [ { "color": "#f2f2f2" }, { "lightness": 19 } ] }, { "featureType": "water", "elementType": "geometry", "stylers": [ { "color": "#e9e9e9" }, { "lightness": 17 } ] } ]

Zonnewijzer

Uw browser ondersteunt geen WebGL

Plattegronden

Interesse in deze woning?

Bel direct voor het maken van een afspraak of laat je gegevens achter.
Dan nemen wij contact met je op.

 

Uw bericht is naar ons verzonden. Wij nemen zo snel mogelijk contact met u op.

Er is iets mis gegaan met het versturen van het formulier.
Controleer of u alle velden (goed) heeft ingevoerd en probeer het nog een keer.