Vrieling Makelaars gebruikt cookies om de website naar behoren te laten werken, om functies voor social media te bieden en om onze website te analyseren. Op onze website kun je ons Cookiebeleid en AVG & Privacybeleid vinden.

Laan van Westmolen 47 A
Mijnsheerenland

State-of-the-art, luxe hoekwoning, Gebouwd in 2021, met energielabel A++++. Deze gasloze woning is een toonbeeld van moderne duurzaamheid en luxe, uitgerust met vloerverwarming en koeling, triple...

Woonoppervlakte
129m²

Omschrijving

State-of-the-art, luxe hoekwoning, Gebouwd in 2021, met energielabel A++++. Deze gasloze woning is een toonbeeld van moderne duurzaamheid en luxe, uitgerust met vloerverwarming en koeling, triple glas en 13 zonnepanelen, waardoor een optimale energie-efficiëntie wordt gegarandeerd.

Deze hoekwoning beschikt over een fijne woonkamer met luxe open keuken en openslaande deuren naar de tuin. Op de eerste verdieping zijn 3 goedformaat slaapkamers en een moderne badkamer gesitueerd. De tweede verdieping is naar wens in te vullen met desgewenst 2 extra slaapkamers. Door de hoekligging is de tuin van prachtig formaat en voorzien van een grote overkapping en schuur.

Een combinatie van ongeëvenaarde stijl met geavanceerde duurzaamheid en comfort, waardoor deze gezinswoning de perfecte keuze is voor diegenen die een luxe, duurzame levensstijl nastreven.

INDELING
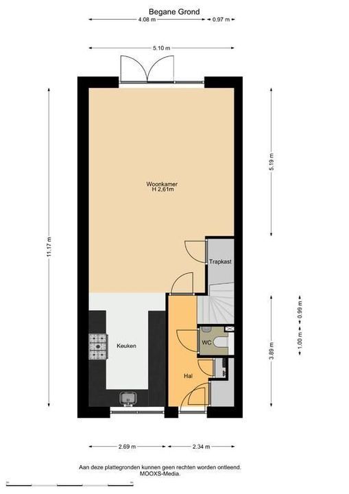
BEGANE GROND
Betreed een wereld van verfijnde elegantie via de stijlvolle entree, compleet met meterkast, toilet met fonteintje, de trapopgang en toegang tot de woonkamer. Welkom in het hart van het huis: een ruime, hotel chic geïnspireerde woonkamer. Deze is perfect ingericht om zowel een gezellige zit- als eethoek te huisvesten en beschikt over charmante openslaande deuren naar de sereen aangelegde tuin. De voorzijde van de woning pronkt met een luxe, open keuken, uitgerust met de nieuwste inductieplaat met 5 kookzones, een afzuigkap, combioven, vaatwasser, en een Amerikaanse koel-vriescombinatie van Samsung met een ingebouwde iPad - het toppunt van moderne keukentechnologie, stijlvol omhuld in zwarte kasten met een luxe aanrechtblad.

EERSTE VERDIEPING
De eerste verdieping biedt een overloop die toegang geeft tot drie ruim bemeten slaapkamers, elk voorzien van elektrische rolluiken, die privacy en comfort garanderen. De badkamer van chic design, is uitgerust met een ruime inloopdouche, een toilet, en een dubbele wastafel met luxe stenen waskommen, allen afgewerkt met elegante zwarte details.

TWEEDE VERDIEPING
De tweede verdieping onthult een riante, veelzijdige ruimte die naar wens kan worden omgevormd tot twee extra slaapkamers. Deze verdieping huisvest ook een praktische wasruimte met aansluitingen voor wasmachine en droger, de innovatieve warmtepomp, de verdelers van de vloerverwarming en de omvormer voor de zonnepanelen.

TUIN
De unieke hoekligging van de woning zorgt voor een verrassend ruime tuin, compleet met een grote overkapping, een uitgestrekt gazon, en een gezellige loungehoek - de ideale setting voor ontspanning en entertainment. Een houten schuur biedt voldoende opbergruimte voor fietsen en een handige achterom zorgt voor gemakkelijke toegang.

AFMETINGEN
Bekijk voor de afmetingen bijgevoegde plattegronden.

ALGEMEEN
- Bouwjaar: 2021
- Woonoppervlakte: 129 m²
- Perceelgrootte: 291 m²
- Eigen grond
- Energielabel: A++++
- Volledig gasloos
- Voorzien van een warmtepomp en warmte terugwinsysteem (WTW)
- 13 zonnepanelen
- Volledig voorzien van triple glas
- Vloerverwarming en -koeling in de gehele woning
- De oplevering is in overleg

BIJZONDERHEDEN
* Vanaf 1 januari 2023 zijn makelaars wettelijk verplicht een biedlogboek bij te houden bij de verkoop van bestaande woningen (en wanneer de koper en/of de verkoper een particulier is). Biedingen kun je per die datum, en indien gewenst, nog steeds mondeling met ons bespreken maar dien je daarna digitaal aan ons te bevestigen via jouw MOVE-account. Het biedlogboek is niet van toepassing bij de verkoop van nieuwbouw, recreatiewoningen, bedrijfswoningen, garageboxen, bouwkavels, woon-/bedrijfspanden en (agrarische) bedrijfsobjecten zonder woonbestemming.
* Bij het sluiten van een koopovereenkomst verklaar je je akkoord dat ondertekening van de koopovereenkomst digitaal plaatsvindt (met iDIN identificatie) door gebruikmaking van het platform van ondertekenen.nl.
* De koopovereenkomst wordt opgesteld conform het meest recente model dat is vastgesteld door de NVM, de Consumentenbond en Vereniging Eigen Huis en aangevuld met enkele aanvullende artikelen waaronder (maar niet uitsluitend) een ouderdoms-clausule, een clausule over de Meetinstructie en een clausule over de onderzoeksplicht van koper.
* Vanzelfsprekend staat het je vrij om, indien gewenst, elke bouwkundige uit te nodigen de woning bouwkundig voor je te keuren teneinde jezelf een goed beeld te kunnen vormen van de bouwkundige staat van de woning.

HOEKSCHE WAARD
De Hoeksche Waard is een eiland ten zuiden van Rotterdam met een oppervlakte van 27.420 hectare, telt ruim 88.000 inwoners en is sinds 2019 samengevoegd in 1 gelijknamige gemeente. Door de status van “Nationaal Landschap” is haar open en landelijk karakter op de lange termijn verzekerd en door de versterking van natuurwaarden zal het er altijd goed wonen blijven.

MIJNSHEERENLAND
Het ‘Haagje van de Hoeksche Waard’ is een fraai groen dorp met nog geen 5.000 inwoners en is direct gelegen aan de Binnenbedijkte Maas, die in de volksmond ‘Binnenmaas’ wordt genoemd. Het dorp kenmerkt zich door de ruime opzet, het gevarieerde aanbod van woningen en de vele recreatiemogelijkheden. Zo is er direct aan de prachtige Binnenmaas een mooi groen wandelpark met zwemstrand, tenniscomplex en watersportvereniging met eigen jachthaven. In de zomer is het hier heerlijk ontspannen en zijn veel inwoners van Mijnsheerenland hier dagelijks te vinden. Vanzelfsprekend heeft het dorp een leuke hockey- en voetbalvereniging en is het voorzien van goede scholen en kinderdagopvang. Voor de dagelijkse boodschappen kun je terecht bij de Plusmarkt, de slager, de bakkerij en de drogist.

Op ongeveer 1 kilometer afstand ligt recreatieoord ‘de Binnenmaas’ dat regionale bekendheid geniet met allerlei attracties waaronder het openluchtzwembad, de kinderboerderij en Restaurant Brasserie Binnenmaas. De uitvalswegen en het openbaar vervoer zorgen voor een goede bereikbaarheid van Mijnsheerenland. Zo brengt de bus je in 20 minuten naar Rotterdam Zuidplein en met de auto is dat zelfs nog sneller. Het is fijn wonen in Mijnsheerenland. Met de rust, de veiligheid, de ruimte en de natuur van een dorp en de nabijheid van een grote stad.

ENTHOUSIAST?
Maak gerust een afspraak voor een vrijblijvende bezichtiging. Dat is mogelijk tijdens kantooruren, maar ook ’s avonds en op zaterdag. Bekijk onze website voor extra informatie over ons kantoor.

EIGEN NVM MAKELAAR
Vrieling Makelaars behartigt de belangen van de verkopende partij. Ons advies bij het kopen van jouw nieuwe woning is dan ook om je eigen NVM-aankoopmakelaar mee te nemen.

TOT SLOT
Deze presentatie is met zorg samengesteld, onder andere (maar niet uitsluitend) aan de hand van de door opdrachtgever (verkoper/verhuurder) aan makelaar verstrekte gegevens en tekeningen. Desondanks kunnen aan deze presentatie geen rechten worden ontleend en aanvaardt de makelaar of zijn opdrachtgever (verkoper/verhuurder) geen enkele aansprakelijkheid voor enige onvolledigheid, onjuistheid of anderszins -dan wel de gevolgen daarvan- van de in deze presentatie verstrekte informatie of elke andere aan de (kandidaat) koper of huurder (of andere belanghebbende) verstrekte informatie m.b.t. het te koop (of te huur) aangeboden object. Alle opgegeven maten en oppervlakten zijn daarnaast slechts indicatief. Mocht deze presentatie of andere verstrekte informatie m.b.t. het te koop (of te huur) aangeboden object vragen oproepen, dan nodigen wij je van harte uit deze onder onze (makelaar) aandacht te brengen.

THUIS IN DE REGIO, THUIS IN DE STAD
DÉ MAKELAAR VOOR DE HOEKSCHE WAARD & ROTTERDAM

Kenmerken

Overdracht

Prijs
€ 584.500,- k.k.
Status
Verkocht
Oplevering
In overleg

Bouw

Soort woonhuis
Eengezinswoning, Hoekwoning
Soort bouw
Bestaande bouw
Bouwjaar
2021
Onderhoud binnen
Uitstekend
Onderhoud buiten
Uitstekend

Oppervlakten en inhoud

Woonoppervlakte
129m²
Perceeloppervlakte
291m²
Oppervlakte woonkamer
37m²
Inhoud
410m³

Indeling

Aantal kamers
5
Aantal slaapkamers
4
Aantal badkamers
1
Aantal verdiepingen
3
Voorzieningen
Rolluiken, Dakraam, Zonnepanelen, Balansventilatie

Energie

Energielabel
A++++
Isolatie
Volledig geisoleerd
Warm water
Elektrische boiler eigendom
Verwarming
Vloerverwarming geheel, Warmtepomp, Warmte Terugwininstallatie

Buitenruimte

Ligging
Aan rustige weg, In woonwijk
Tuin
Achtertuin, Voortuin, Zijtuin
Achtertuin
Zuidoost, 142m², 1050×1350cm
Schuur
Vrijstaand hout
Faciliteiten schuur
Voorzien van elektra

Garage

Locatie

[ { "address": "Laan van Westmolen 47", "zipCode": "3271 BJ", "city": "Mijnsheerenland", "lat": 51.796475, "lng": 4.481487, "heading": 0, "pitch": 0 } ]
[ { "featureType": "all", "elementType": "labels.text.fill", "stylers": [ { "saturation": 36 }, { "color": "#333333" }, { "lightness": 40 } ] }, { "featureType": "all", "elementType": "labels.text.stroke", "stylers": [ { "visibility": "on" }, { "color": "#ffffff" }, { "lightness": 16 } ] }, { "featureType": "all", "elementType": "labels.icon", "stylers": [ { "visibility": "off" } ] }, { "featureType": "administrative", "elementType": "geometry.fill", "stylers": [ { "color": "#fefefe" }, { "lightness": 20 } ] }, { "featureType": "administrative", "elementType": "geometry.stroke", "stylers": [ { "color": "#fefefe" }, { "lightness": 17 }, { "weight": 1.2 } ] }, { "featureType": "administrative.locality", "elementType": "labels.text.fill", "stylers": [ { "color": "#ff0000" } ] }, { "featureType": "landscape", "elementType": "geometry", "stylers": [ { "color": "#f5f5f5" }, { "lightness": 20 } ] }, { "featureType": "poi", "elementType": "geometry", "stylers": [ { "color": "#f5f5f5" }, { "lightness": 21 } ] }, { "featureType": "poi.park", "elementType": "geometry", "stylers": [ { "color": "#dedede" }, { "lightness": 21 } ] }, { "featureType": "road.highway", "elementType": "geometry.fill", "stylers": [ { "color": "#ffffff" }, { "lightness": 17 } ] }, { "featureType": "road.highway", "elementType": "geometry.stroke", "stylers": [ { "color": "#ffffff" }, { "lightness": 29 }, { "weight": 0.2 } ] }, { "featureType": "road.arterial", "elementType": "geometry", "stylers": [ { "color": "#ffffff" }, { "lightness": 18 } ] }, { "featureType": "road.local", "elementType": "geometry", "stylers": [ { "color": "#ffffff" }, { "lightness": 16 } ] }, { "featureType": "transit", "elementType": "geometry", "stylers": [ { "color": "#f2f2f2" }, { "lightness": 19 } ] }, { "featureType": "water", "elementType": "geometry", "stylers": [ { "color": "#e9e9e9" }, { "lightness": 17 } ] } ]

Zonnewijzer

Uw browser ondersteunt geen WebGL

Plattegronden

Interesse in deze woning?

Bel direct voor het maken van een afspraak of laat je gegevens achter.
Dan nemen wij contact met je op.

 

Uw bericht is naar ons verzonden. Wij nemen zo snel mogelijk contact met u op.

Er is iets mis gegaan met het versturen van het formulier.
Controleer of u alle velden (goed) heeft ingevoerd en probeer het nog een keer.

KIMBERLY VESTER

KIMBERLY VESTER

NVM makelaar & Vastgoedstyliste

06 - 30 33 50 77
info@vrielingmakelaars.nl

Vergelijkbare woningen

Verkocht

€ 489.000,- k.k.

Laan van Westmolen 12 3271 BK Mijnsheerenland
Verkocht

€ 595.000,- k.k.

Laan van Moerkerken 88 a 3271 AL Mijnsheerenland
Verkocht

€ 585.000,- k.k.

Laan van Westmolen 71 3271 BJ Mijnsheerenland