Vrieling Makelaars gebruikt cookies om de website naar behoren te laten werken, om functies voor social media te bieden en om onze website te analyseren. Op onze website kun je ons Cookiebeleid en AVG & Privacybeleid vinden.

Admiraal de Ruyterweg 30 B
Rotterdam

APPARTEMENT MET TWEE BALKONS AAN DE ADMIRAAL DE RUYTERWEG
Aan de Admiraal de Ruyterweg bevindt zich dit ruime appartement op de eerste verdieping. De woning beschikt over maar liefst drie...

Woonoppervlakte
75m²

Omschrijving

APPARTEMENT MET TWEE BALKONS AAN DE ADMIRAAL DE RUYTERWEG
Aan de Admiraal de Ruyterweg bevindt zich dit ruime appartement op de eerste verdieping. De woning beschikt over maar liefst drie slaapkamers en twee balkons, en kenmerkt zich door een prettige lichtinval, een praktische indeling en verrassend veel ruimte. Daarnaast biedt het appartement volop mogelijkheden om het geheel naar eigen smaak en woonwensen af te werken. Een ideale kans voor wie centraal wil wonen en tegelijkertijd zijn eigen draai aan de woning wil geven.

Het appartement is bereikbaar via de portiekentree en gelegen op de eerste verdieping.

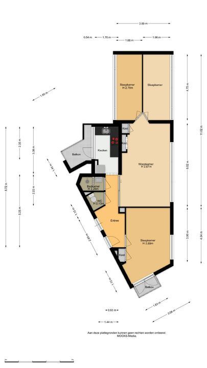
INDELING EN WOONCOMFORT
Bij binnenkomst kom je in de hal, waar direct de neutrale laminaatvloer opvalt die doorloopt in vrijwel het gehele appartement. Dit zorgt voor een rustige en uniforme basis. Vanuit de hal heb je toegang tot de meterkast, het toilet, de badkamer, de woonkamer en de overige vertrekken. Tevens bevindt zich hier een praktische inpandige kast met zowel leg- als hangruimte, ideaal voor extra opbergruimte.

Het toilet is voorzien van een staand toilet. Daarnaast bevinden zich hier de watermeter en een ventilatiekanaal.

WOONKAMER
De woonkamer is ruim en vormt het hart van de woning. Dankzij de grote raampartij komt er veel daglicht binnen, wat zorgt voor een open en aangename sfeer. De kunststof kozijnen zijn voorzien van HR++ beglazing, wat bijdraagt aan het wooncomfort.

De woonkamer staat middels schuifdeuren in verbinding met de hal, wat een speels en ruimtelijk effect creëert. Vanuit de woonkamer heb je bovendien toegang tot twee slaapkamers.

KEUKEN
De keuken is gelegen aan de achterzijde van de woning en uitgevoerd met neutrale houten kastfronten en een grijs kunststof werkblad. Het betreft een praktische ruimte, voorzien van onder andere een vierpits gasfornuis, een spoelbak en aansluitingen voor zowel een wasmachine als een droger.

Vanuit de keuken heb je direct toegang tot het balkon.

BALKONS
Het appartement beschikt over twee balkons. Aan de voorzijde bevindt zich een balkon dat bereikbaar is via de slaapkamer, een fijne plek om van de ochtendzon te genieten.

Aan de achterzijde is het tweede balkon gelegen, bereikbaar via de keuken. Hier kun je in alle rust genieten van de buitenlucht.

SLAAPKAMERS EN BADKAMER
De woning beschikt over drie slaapkamers. De slaapkamer, met inbouwkast, aan de voorzijde van het appartement heeft toegang tot het balkon en is dankzij de grote raampartij een lichte en prettige ruimte. Aan de achterzijde bevinden zich nog twee slaapkamers, die zich kenmerken door de grote raampartijen en het vele daglicht. Beide kamers zijn bereikbaar via de woonkamer en beschikken over kunststof kozijnen met dubbele beglazing en een neutrale laminaatvloer. Deze ruimtes zijn flexibel in te richten als slaapkamer, werkkamer of hobbyruimte.

De badkamer is in 2022 gerenoveerd en modern uitgevoerd met grijze en witte wand- en vloertegels. De ruimte beschikt over een inloopdouche en een wastafelmeubel. In datzelfde jaar zijn ook de meeste overige renovaties uitgevoerd, waaronder de aanleg van een nieuwe cv-installatie.

BERGING
De woning beschikt over een externe berging in de kelder van het complex. Een praktische ruimte, ideaal voor het opbergen van fietsen en andere spullen.

LIGGING
De woning ligt aan de Admiraal de Ruyterweg, een levendige en centrale locatie in de stad. In de directe omgeving vind je diverse winkels, supermarkten, horecagelegenheden en openbaar vervoer. Alles wat je nodig hebt, bevindt zich op korte afstand.

EEN WONING MET POTENTIE
Dit appartement combineert ruimte, licht en een centrale ligging met de mogelijkheid om het geheel naar eigen smaak af te werken.

ALGEMEEN
- Bouwjaar: 1954
- Type woning: appartement
- Woonoppervlakte: circa 75 m²
- Perceelgrootte: m²
- Eigendom: eigen grond
- Energielabel: D
- Verwarming en warm water: middels Cv-installatie
- CV-ketel: Remeha Avanta 2021
- Beglazing: HR++
- VvE-bijdrage: 196,15 p/m
- Voor afmetingen zie plattegronden
- Oplevering in overleg

BIJZONDERHEDEN
- De verkoop van deze woning vindt plaats conform het door de NVM vastgestelde Protocol Transparant Bieden Woonruimte. Vrieling Makelaars maakt hierbij gebruik van het digitale biedplatform MOVE, inclusief een biedlogboek.
- Biedingen worden uitgebracht via MOVE. Biedingen die buiten MOVE worden gedaan, worden uitsluitend in behandeling genomen indien en voor zover deze digitaal via MOVE zijn bevestigd.
- De koopovereenkomst wordt opgesteld op basis van het door de NVM gehanteerde model.
- De koopovereenkomst wordt aangevuld met één of meerdere aanvullende clausules, afhankelijk van het type object, het bouwjaar, het gebruik en de feitelijke situatie. Hierbij kan onder meer gedacht worden aan een ouderdomsclausule, een niet-bewoningsclausule, een clausule inzake de meetmethode / meetinstructie, een clausule inzake de onderzoeksplicht van koper, een clausule waarin wordt vastgelegd of koper voorafgaand aan het uitbrengen van een bod een bouwkundige keuring heeft laten uitvoeren, dan wel daarvan uitdrukkelijk heeft afgezien, alsmede een clausule inzake eventuele bouwplannen en/of voorgenomen verbeteringen en, indien van toepassing, een clausule inzake het recht van erfpacht en de daarop van toepassing zijnde voorwaarden.
- Ondertekening van de koopovereenkomst vindt digitaal plaats.

ENTHOUSIAST?
Maak gerust een afspraak voor een vrijblijvende bezichtiging en bekijk onze website voor aanvullende informatie over ons kantoor en onze werkwijze.

EIGEN NVM MAKELAAR
Vrieling Makelaars behartigt de belangen van de verkopende partij. Wij adviseren je daarom bij de aankoop van een woning een eigen NVM-aankoopmakelaar in te schakelen, die jouw belangen behartigt.

TOT SLOT
Deze presentatie is met zorg samengesteld op basis van de bij Vrieling Makelaars beschikbare informatie, waaronder gegevens afkomstig van de verkoper, openbare bronnen en overige beschikbare documentatie. Desondanks kan niet worden uitgesloten dat de inhoud onvolledig of onjuist is. Aan deze presentatie kunnen geen rechten worden ontleend. Koper wordt uitdrukkelijk uitgenodigd om de verstrekte informatie te controleren, nadere vragen te stellen en waar nodig aanvullend onderzoek te laten verrichten, in het bijzonder bij zaken die voor koper essentieel zijn bij de aankoopbeslissing, zoals onder meer juridische rechten, bouwkundige staat, bestemmingsplan- en gebruiksmogelijkheden. Opgegeven maten en oppervlakten zijn indicatief en gemeten conform de geldende meetinstructie. Indien voor koper onzekerheden bestaan, adviseren wij deze vóór het uitbrengen van een bod te verifiëren.

THUIS IN DE REGIO, THUIS IN DE STAD
DÉ MAKELAAR VOOR DE HOEKSCHE WAARD & ROTTERDAM

Kenmerken

Overdracht

Prijs
€ 349.000,- k.k.
Bijdrage VVE
€ 196,-
Status
Beschikbaar
Oplevering
In overleg

Bouw

Soort appartement
Bovenwoning, Appartement
Woonlaag
1
Soort bouw
Bestaande bouw
Bouwjaar
1954
Onderhoud binnen
Goed
Onderhoud buiten
Goed

Oppervlakten en inhoud

Woonoppervlakte
75m²
Inhoud
226m³

Indeling

Aantal kamers
4
Aantal slaapkamers
3
Aantal badkamers
1
Aantal verdiepingen
1
Voorzieningen
Natuurlijke ventilatie

Energie

Energielabel
D
Warm water
C.V.-ketel
Verwarming
C.V.-ketel
Ketel
Remeha Avanta (2021, Eigendom)

Buitenruimte

Ligging
In centrum
Balkon
Ja
Faciliteiten schuur
Voorzien van elektra

Garage

Locatie

[ { "address": "Admiraal de Ruyterweg 30", "zipCode": "3031 AC", "city": "Rotterdam", "lat": 51.927203, "lng": 4.4868834, "heading": 0, "pitch": 0 } ]
[ { "featureType": "all", "elementType": "labels.text.fill", "stylers": [ { "saturation": 36 }, { "color": "#333333" }, { "lightness": 40 } ] }, { "featureType": "all", "elementType": "labels.text.stroke", "stylers": [ { "visibility": "on" }, { "color": "#ffffff" }, { "lightness": 16 } ] }, { "featureType": "all", "elementType": "labels.icon", "stylers": [ { "visibility": "off" } ] }, { "featureType": "administrative", "elementType": "geometry.fill", "stylers": [ { "color": "#fefefe" }, { "lightness": 20 } ] }, { "featureType": "administrative", "elementType": "geometry.stroke", "stylers": [ { "color": "#fefefe" }, { "lightness": 17 }, { "weight": 1.2 } ] }, { "featureType": "administrative.locality", "elementType": "labels.text.fill", "stylers": [ { "color": "#ff0000" } ] }, { "featureType": "landscape", "elementType": "geometry", "stylers": [ { "color": "#f5f5f5" }, { "lightness": 20 } ] }, { "featureType": "poi", "elementType": "geometry", "stylers": [ { "color": "#f5f5f5" }, { "lightness": 21 } ] }, { "featureType": "poi.park", "elementType": "geometry", "stylers": [ { "color": "#dedede" }, { "lightness": 21 } ] }, { "featureType": "road.highway", "elementType": "geometry.fill", "stylers": [ { "color": "#ffffff" }, { "lightness": 17 } ] }, { "featureType": "road.highway", "elementType": "geometry.stroke", "stylers": [ { "color": "#ffffff" }, { "lightness": 29 }, { "weight": 0.2 } ] }, { "featureType": "road.arterial", "elementType": "geometry", "stylers": [ { "color": "#ffffff" }, { "lightness": 18 } ] }, { "featureType": "road.local", "elementType": "geometry", "stylers": [ { "color": "#ffffff" }, { "lightness": 16 } ] }, { "featureType": "transit", "elementType": "geometry", "stylers": [ { "color": "#f2f2f2" }, { "lightness": 19 } ] }, { "featureType": "water", "elementType": "geometry", "stylers": [ { "color": "#e9e9e9" }, { "lightness": 17 } ] } ]

Zonnewijzer

Uw browser ondersteunt geen WebGL

Plattegronden

Interesse in deze woning?

Bel direct voor het maken van een afspraak of laat je gegevens achter.
Dan nemen wij contact met je op.

 

Uw bericht is naar ons verzonden. Wij nemen zo snel mogelijk contact met u op.

Er is iets mis gegaan met het versturen van het formulier.
Controleer of u alle velden (goed) heeft ingevoerd en probeer het nog een keer.

Vergelijkbare woningen

Verkocht

€ 300.000,- k.k.

Strevelsweg 992 3083 LX Rotterdam
Verkocht

€ 325.000,- k.k.

Meiendaal 110 3075 KL Rotterdam
Verkocht

€ 385.000,- k.k.

Heer Bokelweg 200 3032 AD Rotterdam