Vrieling Makelaars gebruikt cookies om de website naar behoren te laten werken, om functies voor social media te bieden en om onze website te analyseren. Op onze website kun je ons Cookiebeleid en AVG & Privacybeleid vinden.

Johannes Kolfstraat 6
Westmaas

Royale vrijstaande villa met garage en heerlijke tuin gelegen aan de rand van het dorp op een perceel van 815m² eigen grond.

De woning is traditioneel gebouwd en beschikt over een...

Woonoppervlakte
243m²

Omschrijving

Royale vrijstaande villa met garage en heerlijke tuin gelegen aan de rand van het dorp op een perceel van 815m² eigen grond.

De woning is traditioneel gebouwd en beschikt over een ruime woonkamer met haard, open keuken met kookeiland en inbouwapparatuur, handige bijkeuken/ garage, 5 slaapkamers en 2 badkamers. Rondom de woning ligt een heerlijke tuin met meerdere terrassen, overkapping, flinke berging(en), carport en een oprit om op eigen terrein met meerdere auto's te kunnen parkeren.
De woning is gebouwd in 2016, heeft een woonoppervlakte van circa 243m² en blinkt, met een energielabel A++, uit in energiezuinigheid. Zo is de woning onder andere volledig geïsoleerd en heeft 38 zonnepanelen.
Kortom, een ruim en energiezuinig gezinshuis op een fijne plek aan de rand van het dorp.

Aangrenzend aan de woning bevindt zich het wandelpark Waterweide, een heerlijke plek voor een ommetje of om even tot rust te komen. Hier bevinden zich bovendien ook speelmogelijkheden. De woning is gunstig gelegen nabij zowel een openbare als christelijke basisschool, kinderdagverblijf, peuterspeelzaal, sporthal, prikpost en de bibliotheek. In het dorp vindt u daarnaast een fijne supermarkt en een bloemenwinkel voor de dagelijkse boodschappen. De uitvalswegen richting Rotterdam en Brabant zijn binnen 10 autominuten bereikbaar. Ook is er een bushalte op loopafstand met een directe verbinding naar Rotterdam Zuidplein (circa 20 minuten).

Op loop- en fietsafstand ligt de Binnenmaas met strandje. Veel kinderen in het dorp hebben bij wijze van spreken een surfplank naast hun bed staan om, zodra het kan, de Binnenmaas op te gaan en te genieten van het water. Een prachtige plek voor ontspanning, recreatie en watersport, vrijwel om de hoek.

INDELING
BEGANE GROND
Entree van de woning, grote hal met fraaie trappartij, toilet, en meterkast en door middel van dubbele deuren heeft u toegang tot de woonkamer met half open keuken.

De woonkamer met haard is royaal en op verschillende manier in te delen. Er zijn veel raampartijen die zorgen voor de nodige lichtinval en 2 openslaande deuren naar terras/ tuin. Hierdoor is er een echt 'buiten-binnen-gevoel!'.
De begane grond is voorzien van natuurstenen tegelvloer met comfortabele vloerverwarming.

De keuken is ingericht met een centraal kookeiland, wat zorgt voor extra werkruimte en een fijne verbinding met de leefruimte. Deze is voorzien van een inductiekookplaat met plafondafzuiging, een oven, koelkast en een vaatwasser. De keuken biedt volop bergruimte in lades en kasten en is afgewerkt met een donker composiet werkblad en strak vormgegeven fronten in een lichte kleurstelling. Het kookeiland biedt naast extra werkruimte ook een zitgedeelte. Inbouwspots zorgen voor fraaie verlichting.

Vanuit de keuken is er toegang tot de bijkeuken/ garage met extra bergruimte en spoelvoorziening, ook deze is voorzien van vloerverwarming.

EERSTE VERDIEPING
Ruime overloop met toegang tot drie slaapkamers, badkamer en separaat toilet.
De hoofdslaapkamer aan de achterzijde van de woning is royaal en beschikt over een aangrenzende inloopkast. Vanuit deze slaapkamer is direct toegang tot een en-suite badkamer. Deze badkamer is uitgevoerd met een vrijstaand ligbad, een ruime inloopdouche en een dubbel wastafelmeubel. De opzet maakt het een comfortabele ruimte die direct verbonden is met de slaapkamer.

De overige slaapkamers zijn zeer ruim van formaat en praktisch in te richten als kinder-, werk- of logeerkamer.

De tweede badkamer bevindt zich eveneens op deze verdieping en is uitgevoerd met een ruime inloopdouche en een dubbele wastafel met meubel. Afgewerkt met een stijlvolle combinatie van donker- en lichtgrijze tegels.

TWEEDE VERDIEPING
De ruime overloop met dakraam geeft toegang tot 2 slaapkamers. De overloop heeft een werkblad met spoelbak met daaronder de opstelling voor de wasmachine- en droger. Tevens is hier een vaste kast aanwezig met de technische installaties, waaronder de cv-installatie (2016), WTW-unit en boiler (2025) van 300L. De twee ruime slaapkamers hebben beiden dakramen die zorgen voor een prettige lichtinval. De kamers zijn prima geschikt als slaapkamer, werkkamer of hobbyruimte.

TUIN
Heerlijk 'groene' tuin met onder andere 2 terrassen, overkapping, berging, carport, een open berging en oprit voor het parkeren van meerdere auto's. De tuin is met een haag omheind en biedt daarom volop privacy.

ALGEMEEN
- Bouwjaar: 2016
- Woonoppervlakte: circa 243m²
- Perceelgrootte: 815m²
- Eigen grond
- Volledig geïsoleerd
- Energielabel A++
- Verwarming- en warm water: CV-ketel Intergas (2016) en boiler (2025)
- WTW-systeem
- HR++ beglazing in hardhout kunststof kozijnen
- Vloerverwarming op de begane grond
- 38 zonnepanelen (24x 325 Wp en 14x 405Wp) (2020 en 2022)
- Glasvezel
- Meterkast met krachtstroom
- Parkeergelegenheid op eigen terrein (ca. 3 auto’s)
- Geïsoleerde garage
- Houten carport, geschikt voor caravan
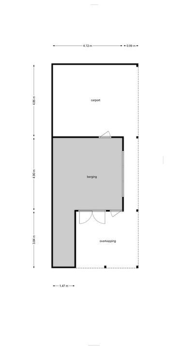
- Voor afmetingen zie plattegronden
- Oplevering in overleg

AFMETINGEN
Bekijk voor de afmetingen bijgevoegde plattegronden.

BIJZONDERHEDEN
- De verkoop van deze woning vindt plaats conform het door de NVM vastgestelde Protocol Transparant Bieden Woonruimte. Vrieling Makelaars maakt hierbij gebruik van het digitale biedplatform MOVE, inclusief een biedlogboek.
- Biedingen worden uitgebracht via MOVE. Biedingen die buiten MOVE worden gedaan, worden uitsluitend in behandeling genomen indien en voor zover deze digitaal via MOVE zijn bevestigd.
- De koopovereenkomst wordt opgesteld op basis van het door de NVM gehanteerde model.
- De koopovereenkomst wordt aangevuld met één of meerdere aanvullende clausules, afhankelijk van het type object, het bouwjaar, het gebruik en de feitelijke situatie. Hierbij kan onder meer gedacht worden aan een niet-bewoningsclausule, een clausule inzake de meetmethode / meetinstructie, een clausule inzake de onderzoeksplicht van koper, een clausule waarin wordt vastgelegd of koper voorafgaand aan het uitbrengen van een bod een bouwkundige keuring heeft laten uitvoeren, dan wel daarvan uitdrukkelijk heeft afgezien, alsmede een clausule inzake eventuele bouwplannen en/of voorgenomen verbeteringen.
- Ondertekening van de koopovereenkomst vindt digitaal plaats.

ENTHOUSIAST?
Maak gerust een afspraak voor een vrijblijvende bezichtiging en bekijk onze website voor aanvullende informatie over ons kantoor en onze werkwijze.

EIGEN NVM MAKELAAR
Vrieling Makelaars behartigt de belangen van de verkopende partij. Wij adviseren je daarom bij de aankoop van een woning een eigen NVM-aankoopmakelaar in te schakelen, die jouw belangen behartigt.

TOT SLOT
Deze presentatie is met zorg samengesteld op basis van de bij Vrieling Makelaars beschikbare informatie, waaronder gegevens afkomstig van de verkoper, openbare bronnen en overige beschikbare documentatie. Desondanks kan niet worden uitgesloten dat de inhoud onvolledig of onjuist is. Aan deze presentatie kunnen geen rechten worden ontleend. Koper wordt uitdrukkelijk uitgenodigd om de verstrekte informatie te controleren, nadere vragen te stellen en waar nodig aanvullend onderzoek te laten verrichten, in het bijzonder bij zaken die voor koper essentieel zijn bij de aankoopbeslissing, zoals onder meer juridische rechten, bouwkundige staat, bestemmingsplan- en gebruiksmogelijkheden. Opgegeven maten en oppervlakten zijn indicatief en gemeten conform de geldende meetinstructie. Indien voor koper onzekerheden bestaan, adviseren wij deze vóór het uitbrengen van een bod te verifiëren.

THUIS IN DE REGIO, THUIS IN DE STAD

Kenmerken

Overdracht

Prijs
€ 1.250.000,- k.k.
Status
Beschikbaar
Oplevering
In overleg

Bouw

Soort woonhuis
Villa, Vrijstaande woning
Soort bouw
Bestaande bouw
Bouwjaar
2016
Onderhoud binnen
Uitstekend
Onderhoud buiten
Uitstekend

Oppervlakten en inhoud

Woonoppervlakte
243m²
Perceeloppervlakte
815m²
Overig oppervlakte
17m²
Inhoud
995m³

Indeling

Aantal kamers
6
Aantal slaapkamers
5
Aantal badkamers
2
Aantal verdiepingen
3
Voorzieningen
Mechanische ventilatie, Dakraam, Glasvezel kabel, Zonnepanelen, Natuurlijke ventilatie

Energie

Energielabel
A++
Isolatie
Volledig geisoleerd
Warm water
C.V.-ketel, Elektrische boiler eigendom
Verwarming
C.V.-ketel, Vloerverwarming gedeeltelijk, Warmte Terugwininstallatie, Houtkachel
Ketel
Intergas (2016, Eigendom)

Buitenruimte

Ligging
Vrij uitzicht
Tuin
Tuin rondom
Schuur
Vrijstaand hout
Faciliteiten schuur
Voorzien van elektra, Voorzien van water

Garage

Soort garage
Aangebouwd steen
Capaciteit
1

Locatie

[ { "address": "Johannes Kolfstraat 6", "zipCode": "3273 CB", "city": "Westmaas", "lat": 51.7884303, "lng": 4.4682636, "heading": 0, "pitch": 0 } ]
[ { "featureType": "all", "elementType": "labels.text.fill", "stylers": [ { "saturation": 36 }, { "color": "#333333" }, { "lightness": 40 } ] }, { "featureType": "all", "elementType": "labels.text.stroke", "stylers": [ { "visibility": "on" }, { "color": "#ffffff" }, { "lightness": 16 } ] }, { "featureType": "all", "elementType": "labels.icon", "stylers": [ { "visibility": "off" } ] }, { "featureType": "administrative", "elementType": "geometry.fill", "stylers": [ { "color": "#fefefe" }, { "lightness": 20 } ] }, { "featureType": "administrative", "elementType": "geometry.stroke", "stylers": [ { "color": "#fefefe" }, { "lightness": 17 }, { "weight": 1.2 } ] }, { "featureType": "administrative.locality", "elementType": "labels.text.fill", "stylers": [ { "color": "#ff0000" } ] }, { "featureType": "landscape", "elementType": "geometry", "stylers": [ { "color": "#f5f5f5" }, { "lightness": 20 } ] }, { "featureType": "poi", "elementType": "geometry", "stylers": [ { "color": "#f5f5f5" }, { "lightness": 21 } ] }, { "featureType": "poi.park", "elementType": "geometry", "stylers": [ { "color": "#dedede" }, { "lightness": 21 } ] }, { "featureType": "road.highway", "elementType": "geometry.fill", "stylers": [ { "color": "#ffffff" }, { "lightness": 17 } ] }, { "featureType": "road.highway", "elementType": "geometry.stroke", "stylers": [ { "color": "#ffffff" }, { "lightness": 29 }, { "weight": 0.2 } ] }, { "featureType": "road.arterial", "elementType": "geometry", "stylers": [ { "color": "#ffffff" }, { "lightness": 18 } ] }, { "featureType": "road.local", "elementType": "geometry", "stylers": [ { "color": "#ffffff" }, { "lightness": 16 } ] }, { "featureType": "transit", "elementType": "geometry", "stylers": [ { "color": "#f2f2f2" }, { "lightness": 19 } ] }, { "featureType": "water", "elementType": "geometry", "stylers": [ { "color": "#e9e9e9" }, { "lightness": 17 } ] } ]

Zonnewijzer

Uw browser ondersteunt geen WebGL

Plattegronden

Interesse in deze woning?

Bel direct voor het maken van een afspraak of laat je gegevens achter.
Dan nemen wij contact met je op.

 

Uw bericht is naar ons verzonden. Wij nemen zo snel mogelijk contact met u op.

Er is iets mis gegaan met het versturen van het formulier.
Controleer of u alle velden (goed) heeft ingevoerd en probeer het nog een keer.

Vergelijkbare woningen

€ 1.495.000,- k.k.

Kreupeleweg 72 3273 LZ Westmaas