Vrieling Makelaars gebruikt cookies om de website naar behoren te laten werken, om functies voor social media te bieden en om onze website te analyseren. Op onze website kun je ons Cookiebeleid en AVG & Privacybeleid vinden.

Cabbeweide 30
Westmaas

Deze woning verkoopt zichzelf. Wat een plaatje! Met trots presenteren we deze fraaie kwadrantwoning in Westmaas. De woning is gelegen op een royaal perceel van 179m² eigen grond, met besloten goed...

Woonoppervlakte
98m²

Omschrijving

Deze woning verkoopt zichzelf. Wat een plaatje! Met trots presenteren we deze fraaie kwadrantwoning in Westmaas. De woning is gelegen op een royaal perceel van 179m² eigen grond, met besloten goed verzorgde zonnige voor- en achtertuin. De woning biedt een ruime, lichte, sfeervolle woonkamer, een moderne open keuken (2021) met voldoende ruimte voor een extra eettafel, drie comfortabele slaapkamers en een verzorgde badkamer met een inloopdouche.
Let op: De vraagprijs is een vanaf prijs.

Natuurlijk kun je in Westmaas niet om de prachtige Binnenmaas met zwemstrand, bootjes en nabijgelegen wandelpark heen. In de zomer is het hier heerlijk ontspannen. Een sportieve uitdaging vind je wellicht op het plaatselijke tenniscomplex. Daarnaast vind je een kinderdagverblijf en een goede basisschool, diverse zorgvoorzieningen en speeltuinen. En winkels voor je dagelijkse boodschappen. De uitvalswegen via de Heinenoordtunnel zijn gemakkelijk aan te rijden, In maximaal 20 minuten zit je in Rotterdam of Barendrecht.

Kortom: het is heerlijk wonen in Westmaas. Met veel plezier laten wij de woning van binnen zien. Neem contact met ons op voor een vrijblijvende bezichtigingsafspraak.

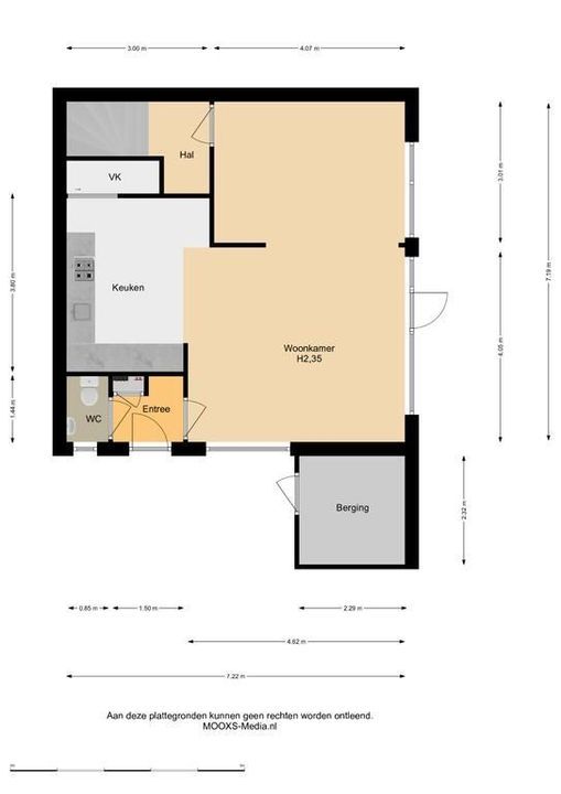
INDELING
BEGANE GROND
Bij binnenkomst in de woning betreed je de lichte hal, die toegang biedt tot de nette toiletruimte met fonteintje, een uitgebreide meterkast en de woonkamer.

Zodra je de woonkamer binnenkomt valt direct de ruimtelijke opzet en overvloedige lichtinval op. De sfeervolle, doorgebroken woonkamer biedt voldoende plaats voor een grote eettafel en een ruim zitgedeelte.

De moderne keuken, die in 2021 is geïnstalleerd, is stijlvol afgewerkt. En is voorzien van hoogwaardige inbouwapparatuur, waaronder een combi-oven, koffiezetapparaat, koel-vriescombinatie en vaatwasser.
Daarnaast is er een inductiekookplaat met een recirculatiekap. Een kleine lichtkoepel zorgt voor extra natuurlijke lichtinval. Ook hier is ruimte voor een eettafel.

Naast de keuken bevindt zich een praktische trapkast, met wasmachine- en drogeraansluitingen en extra opbergruimte.

De begane grond wordt comfortabel verwarmd door moderne energiezuinige warmtepanelen, en de gehele ruimte is afgewerkt met een drempelvrije nieuwe laminaatvloer.

EERSTE VERDIEPING
Vanaf de overloop is er toegang naar de 2/3 slaapkamers, badkamer en via een vlizotrap naar de vliering met kiepraam; een ideale opbergruimte of extra werkkamer. Hier is ook de cv-ketel geplaatst.

Op deze verdieping zijn 2 slaapkamers en eventueel een derde slaapkamer. Deze is vanuit de tweede slaapkamer te bereiken. In 2 slaapkamers is er toegang naar extra bergruimte.
Alle slaapkamers zijn voorzien van een ruimtescheppende dakkapel en doorgelegde lichte laminaatvloer. De ouderslaapkamer heeft een vaste kledingkast met zowel hang- als leggedeelte.

De badkamer is volledig afgewerkt met vloer- en wandtegels en voorzien van een douche, toilet, wastafelmeubel, designradiator en een mechanisch ventilatiesysteem

TUIN
De charmante achtertuin is ideaal gelegen op het zonnige zuidoosten en biedt gedurende de hele dag een perfecte mix van zon en schaduw. Het hele jaar door is deze tuin prachtig en aangelegd met volwassen beplanting die zich in elk seizoen in een andere bloeiperiode bevindt. Bovendien zijn er terrastegels en elektriciteitsvoorzieningen voor buitenverlichting en stroom.
Aan de voorzijde van de woning is een kleine zonnige tuin met overkapping, een vorstvrije buitenkraan en een berging, die ook is voorzien van elektrische aansluitingen. Deze biedt voldoende ruimte aan fietsen en tuinspullen.

AFMETINGEN
Bekijk voor de afmetingen bijgevoegde plattegronden.

ALGEMEEN
- Bouwjaar: 1977
- Woonoppervlakte: 98m²
- Perceelgrootte: 179m²
- Eigen grond
- Energielabel: C
- De vraagprijs is een vanafprijs
- De oplevering is in overleg

BIJZONDERHEDEN
- CV-ketel van het merk Nefit, 2015
- Gehele begane grond voorzien van warmtepanelen
- Dubbele beglazing in kunststof kozijnen
- Vloerisolatie aangebracht
- Dak is voorzien van asbestvrije leien
- Meeste kamers voorzien van elektrisch rolluiken
- Mechanisch ventilatie systeem
- Keralit buitenwerk

BIJZONDERHEDEN
* Vanaf 1 januari 2023 zijn makelaars wettelijk verplicht een biedlogboek bij te houden bij de verkoop van bestaande woningen (en wanneer de koper en/of de verkoper een particulier is). Biedingen kun je per die datum, en indien gewenst, nog steeds mondeling met ons bespreken maar dien je daarna digitaal aan ons te bevestigen via jouw MOVE-account. Het biedlogboek is niet van toepassing bij de verkoop van nieuwbouw, recreatiewoningen, bedrijfswoningen, garageboxen, bouwkavels, woon-/bedrijfspanden en (agrarische) bedrijfsobjecten zonder woonbestemming.
* Bij het sluiten van een koopovereenkomst verklaar je je akkoord dat ondertekening van de koopovereenkomst digitaal plaatsvindt (met iDIN identificatie) door gebruikmaking van het platform van ondertekenen.nl.
* De koopovereenkomst wordt opgesteld conform het meest recente model dat is vastgesteld door de NVM, de Consumentenbond en Vereniging Eigen Huis en aangevuld met enkele aanvullende artikelen waaronder (maar niet uitsluitend) een ouderdoms-clausule, een clausule over de Meetinstructie en een clausule over de onderzoeksplicht van koper.
* Vanzelfsprekend staat het je vrij om, indien gewenst, elke bouwkundige (behoudens de Vereniging Eigen Huis) uit te nodigen de woning bouwkundig voor je te keuren teneinde jezelf een goed beeld te kunnen vormen van de bouwkundige staat van de woning.

HOEKSCHE WAARD
De Hoeksche Waard is een eiland ten zuiden van Rotterdam met een oppervlakte van 27.420 hectare, telt ruim 88.000 inwoners en is sinds 2019 samengevoegd in 1 gelijknamige gemeente. Door de status van “Nationaal Landschap” is haar open en landelijk karakter op de lange termijn verzekerd en door de versterking van natuurwaarden zal het er altijd goed wonen blijven.

ENTHOUSIAST?
Maak gerust een afspraak voor een vrijblijvende bezichtiging. Dat is mogelijk tijdens kantooruren, maar ook ’s avonds en op zaterdag. Bekijk onze website voor extra informatie over ons kantoor.

EIGEN NVM MAKELAAR
Vrieling Makelaars behartigt de belangen van de verkopende partij. Ons advies bij het kopen van jouw nieuwe woning is dan ook om je eigen NVM-aankoopmakelaar mee te nemen.

TOT SLOT
Deze presentatie is met zorg samengesteld, onder andere (maar niet uitsluitend) aan de hand van de door opdrachtgever (verkoper/verhuurder) aan makelaar verstrekte gegevens en tekeningen. Desondanks kunnen aan deze presentatie geen rechten worden ontleend en aanvaardt de makelaar of zijn opdrachtgever (verkoper/verhuurder) geen enkele aansprakelijkheid voor enige onvolledigheid, onjuistheid of anderszins -dan wel de gevolgen daarvan- van de in deze presentatie verstrekte informatie of elke andere aan de (kandidaat) koper of huurder (of andere belanghebbende) verstrekte informatie m.b.t. het te koop (of te huur) aangeboden object. Alle opgegeven maten en oppervlakten zijn daarnaast slechts indicatief. Mocht deze presentatie of andere verstrekte informatie m.b.t. het te koop (of te huur) aangeboden object vragen oproepen, dan nodigen wij je van harte uit deze onder onze (makelaar) aandacht te brengen.

THUIS IN DE REGIO, THUIS IN DE STAD
DÉ MAKELAAR VOOR DE HOEKSCHE WAARD & ROTTERDAM

Kenmerken

Overdracht

Prijs
€ 325.000,- k.k.
Status
Verkocht
Oplevering
In overleg

Bouw

Soort woonhuis
Eengezinswoning, Hoekwoning
Soort bouw
Bestaande bouw
Bouwjaar
1977
Onderhoud binnen
Goed
Onderhoud buiten
Goed

Oppervlakten en inhoud

Woonoppervlakte
98m²
Perceeloppervlakte
179m²
Overig oppervlakte
12m²
Inhoud
280m³

Indeling

Aantal kamers
4
Aantal slaapkamers
3
Aantal badkamers
1
Aantal verdiepingen
3
Voorzieningen
Mechanische ventilatie, Rolluiken, Dakraam

Energie

Energielabel
C
Isolatie
Vloerisolatie, Dubbel glas
Warm water
C.V.-ketel
Verwarming
C.V.-ketel, Elektrische verwarming
Ketel
Nefit (2015, Combi-ketel, Eigendom)

Buitenruimte

Ligging
In woonwijk
Tuin
Achtertuin, Voortuin
Achtertuin
Zuidoost, 75m², 1000×750cm
Schuur
Aangebouwd steen
Faciliteiten schuur
Voorzien van elektra

Locatie

[ { "address": "Cabbeweide 30", "zipCode": "3273 XJ", "city": "Westmaas", "lat": 51.7840196, "lng": 4.4740025, "heading": 0, "pitch": 0 } ]
[ { "featureType": "all", "elementType": "labels.text.fill", "stylers": [ { "saturation": 36 }, { "color": "#333333" }, { "lightness": 40 } ] }, { "featureType": "all", "elementType": "labels.text.stroke", "stylers": [ { "visibility": "on" }, { "color": "#ffffff" }, { "lightness": 16 } ] }, { "featureType": "all", "elementType": "labels.icon", "stylers": [ { "visibility": "off" } ] }, { "featureType": "administrative", "elementType": "geometry.fill", "stylers": [ { "color": "#fefefe" }, { "lightness": 20 } ] }, { "featureType": "administrative", "elementType": "geometry.stroke", "stylers": [ { "color": "#fefefe" }, { "lightness": 17 }, { "weight": 1.2 } ] }, { "featureType": "administrative.locality", "elementType": "labels.text.fill", "stylers": [ { "color": "#ff0000" } ] }, { "featureType": "landscape", "elementType": "geometry", "stylers": [ { "color": "#f5f5f5" }, { "lightness": 20 } ] }, { "featureType": "poi", "elementType": "geometry", "stylers": [ { "color": "#f5f5f5" }, { "lightness": 21 } ] }, { "featureType": "poi.park", "elementType": "geometry", "stylers": [ { "color": "#dedede" }, { "lightness": 21 } ] }, { "featureType": "road.highway", "elementType": "geometry.fill", "stylers": [ { "color": "#ffffff" }, { "lightness": 17 } ] }, { "featureType": "road.highway", "elementType": "geometry.stroke", "stylers": [ { "color": "#ffffff" }, { "lightness": 29 }, { "weight": 0.2 } ] }, { "featureType": "road.arterial", "elementType": "geometry", "stylers": [ { "color": "#ffffff" }, { "lightness": 18 } ] }, { "featureType": "road.local", "elementType": "geometry", "stylers": [ { "color": "#ffffff" }, { "lightness": 16 } ] }, { "featureType": "transit", "elementType": "geometry", "stylers": [ { "color": "#f2f2f2" }, { "lightness": 19 } ] }, { "featureType": "water", "elementType": "geometry", "stylers": [ { "color": "#e9e9e9" }, { "lightness": 17 } ] } ]

Zonnewijzer

Uw browser ondersteunt geen WebGL

Plattegronden

Interesse in deze woning?

Bel direct voor het maken van een afspraak of laat je gegevens achter.
Dan nemen wij contact met je op.

 

Uw bericht is naar ons verzonden. Wij nemen zo snel mogelijk contact met u op.

Er is iets mis gegaan met het versturen van het formulier.
Controleer of u alle velden (goed) heeft ingevoerd en probeer het nog een keer.

KIMBERLY VESTER

KIMBERLY VESTER

NVM makelaar & Vastgoedstyliste

06 - 30 33 50 77
info@vrielingmakelaars.nl

Vergelijkbare woningen

Verkocht

€ 350.000,- k.k.

Beneden Nieuwstraat 13 3273 BB Westmaas
Verkocht

€ 265.000,- k.k.

van Koetsveldlaan 17 D 3273 AL Westmaas
Verkocht

€ 289.000,- k.k.

Cabbeweide 22 3273 XJ Westmaas