Vrieling Makelaars gebruikt cookies om de website naar behoren te laten werken, om functies voor social media te bieden en om onze website te analyseren. Op onze website kun je ons Cookiebeleid en AVG & Privacybeleid vinden.

Landheerlaan 34
Mijnsheerenland

Heerlijk riante en uitstekend onderhouden twee-onder-eenkapwoning met extra grote garage en een woonoppervlakte van maar liefst 146m², gelegen op een prachtige, rustige locatie in de een...

Woonoppervlakte
146m²

Omschrijving

Heerlijk riante en uitstekend onderhouden twee-onder-eenkapwoning met extra grote garage en een woonoppervlakte van maar liefst 146m², gelegen op een prachtige, rustige locatie in de een kindvriendelijke woonwijk ‘Hofwijk aan de rand van Mijnsheerenland. Gelegen op een perceel van 430m² eigen grond met een zonnige achtertuin & eigen oprit.

De woning heeft een zeer royale living met schuifpui naar de tuin, moderne keuken (2022) met kook- en spoeleiland deze is voorzien van alle denkbare inbouwapparatuur. Verder beschikt de woning over 4 ruime slaapkamers en een luxe badkamer (2022) met een inloopdouche voorzien van een dubbele regendouche en een sunshower.
De gehele woning is uitstekend geïsoleerd, voorzien van 15 zonnepanelen, keurig afgewerkt en biedt een zee van leefruimte voor het hele gezin.

De woning ligt in het geliefde “Hofwijk” die gekenmerkt wordt door zijn ruime opzet, de groenvoorzieningen en speelgelegenheid voor kinderen. De locatie is zonder meer perfect: de Binnenmaas, het park, tenniscomplex, watersportvereniging en strandje liggen op loop/fietsafstand. Voorts zijn openbaar vervoer, goede scholen, kinderdagverblijf en winkels voor de dagelijkse behoeften in de directe nabijheid aanwezig. Ook de toegangswegen naar grote steden zoals Rotterdam en Breda liggen binnen handbereik.

Deze fantastische woning is door de huidige bewoners goed onderhouden en met gevoel voor stijl ingericht. Eventuele nieuwe bewoners hoeven zich de woning slechts nog eigen te maken.
Met veel plezier laten wij u alles rustig zien. Maak daarvoor vrijblijvend een bezichtigingsafspraak.

INDELING
BEGANE GROND
Betreed deze heerlijke woning en laat je verrassen.
De entree verwelkomt je met een eigentijdse toiletruimte (2022) compleet met een fonteintje, en biedt toegang tot de meterkast, woonkamer en de trap naar de eerste verdieping.

Via de stalen taatsdeur is er toegang naar de royale en uitgebouwde living van ±43m2, met een aangename kleurstelling, prettige lichtinval, uitstekende styling en de heerlijke ruimtebeleving. Meer dan voldoende ruimte voor een comfortabel zitgedeelte en aan de voorzijde ruimte voor een grote eettafel. Open op een mooie dag de driedelige schuifpui en de tuin wordt bovendien een verlengstuk van deze prachtige leefruimte.

De keuken aan de voorzijde is in 2022 volledig vernieuwd. De keuken is afgewerkt met een Dekton werkblad en antraciet betonlook keukenkasten met subtiele lichtlijsten als accent.
Hier kun je niet alleen heerlijke maaltijden bereiden, maar ook gezellig borrelen met familie en vrienden aan de bar.
Het kook- en spoeleiland heeft een inductiekookplaat met zoneverdeler en een ingebouwd afzuigsysteem naar buiten. De vaatwasser en ingebouwde afvalbak maken opruimen eenvoudig, en een Quooker zorgt voor direct kokend water.
In de kastenwand vind je een grote koelkast met vershoudladen, een vriezer, een combi-stoomoven, een combi-oven en een warmhoudlade. En voor wijnliefhebbers is er zelfs een wijnkoeler met twee zones.
Alle apparatuur is van het hoogwaardige merk Bosch, behalve de vaatwasser, die afkomstig is van Siemens.
Direct naast de keuken bevindt zich een praktische trapkast met planken voor voorraad of schoonmaakspullen, waardoor alles binnen handbereik is.

De gehele begane grond is afgewerkt met een visgraat PVC-vloer, welke voor extra comfort voorzien is van vloerverwarming, inclusief de toiletruimte.

EERSTE VERDIEPING
Bij het betreden van de eerste verdieping kom je op een overloop met een ingebouwde kledingkast, voorzien van zowel hang- als legmogelijkheden. Deze kast kan eventueel ter overname worden aangeboden.
Op deze verdieping bevinden zich drie slaapkamers, allemaal royaal van formaat en voorzien van een doorgelegde PVC-vloer. Deze kamers bieden voldoende ruimte om te ontspannen en tot rust te komen.

De badkamer, volledig vernieuwd in 2022, is betegeld met lichtgrijze wandtegels, gecombineerd met grijs/bruine vloertegels, wat een stijlvolle uitstraling geeft.
De badkamer is van alle gemakken voorzien, waaronder een ruime inloopdouche met niet één, maar twee regendouches en een handdouche voor ultiem comfort. De sunshower voegt een vleugje luxe toe voor extra ontspanning.
Het dubbele wastafelmeubel met lades biedt voldoende opbergruimte voor al je toiletartikelen en is uitgerust met ingebouwde kranen voor een strak en eigentijds ontwerp. Een elektrische designradiator zorgt voor warmte en comfort, terwijl het toilet en de mechanische ventilatie de functionaliteit van de badkamer compleet maken.

TWEEDE VERDIEPING
Bij het betreden van de tweede verdieping kom je op een overloop met een technische ruimte, waar je de wasmachine- en drogeropstelling vindt, evenals de WTW-unit, cv-ketel en de omvormer van de zonnepanelen.
Daarnaast is er een vierde slaapkamer op deze verdieping, die ruim van formaat is en voorzien van praktische knieschotten voor extra opslagruimte. De PVC-vloer zorgt voor een moderne afwerking van de kamer.

TUIN
De achtertuin is werkelijk een plaatje en weerspiegelt de kwaliteit van het woonhuis. Met dezelfde zorg en aandacht is deze ontworpen, aangelegd en onderhouden. De tuin is voorzien van fraaie tegels, drainage, een waterpunt en borders met volwassen beplanting die het hele jaar door kleur toevoegen.
Onder de overkapping vind je een ruimte voor de loungeset en er is elektra, waardoor het de perfecte plek is om te ontspannen en te genieten van het buitenleven.
De trampoline blijft achter in de tuin, en ook is er een comfortabele palletbank en het bankje om te blijven genieten van deze prachtige buitenruimte.

In de voortuin is voldoende parkeergelegenheid voor het parkeren van twee á drie auto’s op eigen terrein.

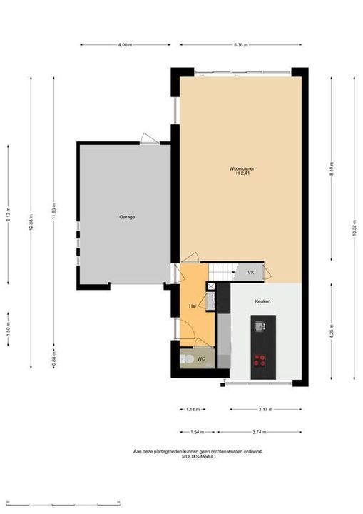
GARAGE
De garage, met een oppervlakte van 25m2, is een ideale plek voor het opbergen van fietsen, tuinspullen, gereedschap en meer.
Deze multifunctionele ruimte is goed uitgerust met wateraanvoer, handige kasten en een werkbank voor al je klusprojecten. Een grote schuifkast blijft achter en biedt extra opbergruimte voor al je benodigdheden.
De garage heeft ook een deur die direct toegang biedt tot de tuin, waardoor het gemakkelijk is om je tuingereedschap en materialen te bereiken. Of je nu een handige klusser bent of gewoon extra opbergruimte nodig hebt, deze garage is de perfecte aanvulling op deze woning.

AFMETINGEN
Bekijk voor de afmetingen bijgevoegde plattegronden.

ALGEMEEN
- Bouwjaar: 2004
- Woonoppervlakte: 146m²
- Perceelgrootte: 430m²
- Eigen grond
- Energielabel: A
- Volledige isolatie
- Cv-ketel van het merk Nefit 2022, huurprijs is €31,58 per maand en de overname prijs is €1.495,83
- WTW-unit aanwezig
- De oplevering is in overleg

PLUSPUNTEN
+ Begane grond is afgewerkt met een PVC-vloer (2022) voorzien van vloerverwarming
+ Luxe woonkeuken (2022) o.a. voorzien van wijnkoeler, warmhoudladen en combi-stoomoven
+ Moderne badkamer (2022) o.a. voorzien van inloopdouche met 2x een regendouche en een sunshower
+ 15 zonnepanelen aanwezig
+ Waterontharder blijft achter

BIJZONDERHEDEN
* Vanaf 1 januari 2023 zijn makelaars wettelijk verplicht een biedlogboek bij te houden bij de verkoop van bestaande woningen (en wanneer de koper en/of de verkoper een particulier is). Biedingen kun je per die datum, en indien gewenst, nog steeds mondeling met ons bespreken maar dien je daarna digitaal aan ons te bevestigen via jouw MOVE-account. Het biedlogboek is niet van toepassing bij de verkoop van nieuwbouw, recreatiewoningen, bedrijfswoningen, garageboxen, bouwkavels, woon-/bedrijfspanden en (agrarische) bedrijfsobjecten zonder woonbestemming.
* Bij het sluiten van een koopovereenkomst verklaar je je akkoord dat ondertekening van de koopovereenkomst digitaal plaatsvindt (met iDIN identificatie) door gebruikmaking van het platform van ondertekenen.nl.
* De koopovereenkomst wordt opgesteld conform het meest recente model dat is vastgesteld door de NVM, de Consumentenbond en Vereniging Eigen Huis en aangevuld met enkele aanvullende artikelen waaronder (maar niet uitsluitend) een ouderdoms-clausule, een clausule over de Meetinstructie en een clausule over de onderzoeksplicht van koper.
* Vanzelfsprekend staat het je vrij om, indien gewenst, elke bouwkundige (behoudens de Vereniging Eigen Huis) uit te nodigen de woning bouwkundig voor je te keuren teneinde jezelf een goed beeld te kunnen vormen van de bouwkundige staat van de woning.

HOEKSCHE WAARD
De Hoeksche Waard is een eiland ten zuiden van Rotterdam met een oppervlakte van 27.420 hectare, telt ruim 88.000 inwoners en is sinds 2019 samengevoegd in 1 gelijknamige gemeente. Door de status van “Nationaal Landschap” is haar open en landelijk karakter op de lange termijn verzekerd en door de versterking van natuurwaarden zal het er altijd goed wonen blijven.

MIJNSHEERENLAND
Het ‘Haagje van de Hoeksche Waard’ is een fraai groen dorp met nog geen 5.000 inwoners en is direct gelegen aan de Binnenbedijkte Maas, die in de volksmond ‘Binnenmaas’ wordt genoemd. Het dorp kenmerkt zich door de ruime opzet, het gevarieerde aanbod van woningen en de vele recreatiemogelijkheden. Zo is er direct aan de prachtige Binnenmaas een mooi groen wandelpark met zwemstrand, tenniscomplex en watersportvereniging met eigen jachthaven. In de zomer is het hier heerlijk ontspannen en zijn veel inwoners van Mijnsheerenland hier dagelijks te vinden. Vanzelfsprekend heeft het dorp een leuke hockey- en voetbalvereniging en is het voorzien van goede scholen en kinderdagopvang. Voor de dagelijkse boodschappen kun je terecht bij de Plusmarkt, de slager, de bakkerij en de drogist.

Op ongeveer 1 kilometer afstand ligt recreatieoord ‘de Binnenmaas’ dat regionale bekendheid geniet met allerlei attracties waaronder het openluchtzwembad, de kinderboerderij en Restaurant Brasserie Binnenmaas. De uitvalswegen en het openbaar vervoer zorgen voor een goede bereikbaarheid van Mijnsheerenland. Zo brengt de bus je in 20 minuten naar Rotterdam Zuidplein en met de auto is dat zelfs nog sneller. Het is fijn wonen in Mijnsheerenland. Met de rust, de veiligheid, de ruimte en de natuur van een dorp en de nabijheid van een grote stad.

ENTHOUSIAST?
Maak gerust een afspraak voor een vrijblijvende bezichtiging. Dat is mogelijk tijdens kantooruren, maar ook ’s avonds en op zaterdag. Bekijk onze website voor extra informatie over ons kantoor.

EIGEN NVM MAKELAAR
Vrieling Makelaars behartigt de belangen van de verkopende partij. Ons advies bij het kopen van jouw nieuwe woning is dan ook om je eigen NVM-aankoopmakelaar mee te nemen.

TOT SLOT
Deze presentatie is met zorg samengesteld, onder andere (maar niet uitsluitend) aan de hand van de door opdrachtgever (verkoper/verhuurder) aan makelaar verstrekte gegevens en tekeningen. Desondanks kunnen aan deze presentatie geen rechten worden ontleend en aanvaardt de makelaar of zijn opdrachtgever (verkoper/verhuurder) geen enkele aansprakelijkheid voor enige onvolledigheid, onjuistheid of anderszins -dan wel de gevolgen daarvan- van de in deze presentatie verstrekte informatie of elke andere aan de (kandidaat) koper of huurder (of andere belanghebbende) verstrekte informatie m.b.t. het te koop (of te huur) aangeboden object. Alle opgegeven maten en oppervlakten zijn daarnaast slechts indicatief. Mocht deze presentatie of andere verstrekte informatie m.b.t. het te koop (of te huur) aangeboden object vragen oproepen, dan nodigen wij je van harte uit deze onder onze (makelaar) aandacht te brengen.

THUIS IN DE REGIO, THUIS IN DE STAD
DÉ MAKELAAR VOOR DE HOEKSCHE WAARD & ROTTERDAM

Kenmerken

Overdracht

Prijs
€ 750.000,- k.k.
Status
Verkocht
Oplevering
In overleg

Bouw

Soort woonhuis
Herenhuis, 2-onder-1-kapwoning
Soort bouw
Bestaande bouw
Bouwjaar
2004
Onderhoud binnen
Goed
Onderhoud buiten
Goed

Oppervlakten en inhoud

Woonoppervlakte
146m²
Perceeloppervlakte
430m²
Overig oppervlakte
25m²
Inhoud
381m³

Indeling

Aantal kamers
5
Aantal slaapkamers
4
Aantal badkamers
1
Aantal verdiepingen
3
Voorzieningen
Schuifpui, Dakraam, Zonnepanelen

Energie

Energielabel
A
Isolatie
Volledig geisoleerd
Warm water
C.V.-ketel
Verwarming
C.V.-ketel, Vloerverwarming gedeeltelijk
Ketel
Intergas Extreme 36 CW5 (2022, Combi-ketel, Huur)

Buitenruimte

Ligging
In woonwijk
Tuin
Achtertuin, Voortuin, Zijtuin
Achtertuin
Zuidwest, 188m², 1500×1250cm

Garage

Soort garage
Aangebouwd steen
Capaciteit
1
Afmetingen
25m², 400×613

Locatie

[ { "address": "Landheerlaan 34", "zipCode": "3271 TN", "city": "Mijnsheerenland", "lat": 51.7986381, "lng": 4.498918, "heading": 0, "pitch": 0 } ]
[ { "featureType": "all", "elementType": "labels.text.fill", "stylers": [ { "saturation": 36 }, { "color": "#333333" }, { "lightness": 40 } ] }, { "featureType": "all", "elementType": "labels.text.stroke", "stylers": [ { "visibility": "on" }, { "color": "#ffffff" }, { "lightness": 16 } ] }, { "featureType": "all", "elementType": "labels.icon", "stylers": [ { "visibility": "off" } ] }, { "featureType": "administrative", "elementType": "geometry.fill", "stylers": [ { "color": "#fefefe" }, { "lightness": 20 } ] }, { "featureType": "administrative", "elementType": "geometry.stroke", "stylers": [ { "color": "#fefefe" }, { "lightness": 17 }, { "weight": 1.2 } ] }, { "featureType": "administrative.locality", "elementType": "labels.text.fill", "stylers": [ { "color": "#ff0000" } ] }, { "featureType": "landscape", "elementType": "geometry", "stylers": [ { "color": "#f5f5f5" }, { "lightness": 20 } ] }, { "featureType": "poi", "elementType": "geometry", "stylers": [ { "color": "#f5f5f5" }, { "lightness": 21 } ] }, { "featureType": "poi.park", "elementType": "geometry", "stylers": [ { "color": "#dedede" }, { "lightness": 21 } ] }, { "featureType": "road.highway", "elementType": "geometry.fill", "stylers": [ { "color": "#ffffff" }, { "lightness": 17 } ] }, { "featureType": "road.highway", "elementType": "geometry.stroke", "stylers": [ { "color": "#ffffff" }, { "lightness": 29 }, { "weight": 0.2 } ] }, { "featureType": "road.arterial", "elementType": "geometry", "stylers": [ { "color": "#ffffff" }, { "lightness": 18 } ] }, { "featureType": "road.local", "elementType": "geometry", "stylers": [ { "color": "#ffffff" }, { "lightness": 16 } ] }, { "featureType": "transit", "elementType": "geometry", "stylers": [ { "color": "#f2f2f2" }, { "lightness": 19 } ] }, { "featureType": "water", "elementType": "geometry", "stylers": [ { "color": "#e9e9e9" }, { "lightness": 17 } ] } ]

Zonnewijzer

Uw browser ondersteunt geen WebGL

Plattegronden

Interesse in deze woning?

Bel direct voor het maken van een afspraak of laat je gegevens achter.
Dan nemen wij contact met je op.

 

Uw bericht is naar ons verzonden. Wij nemen zo snel mogelijk contact met u op.

Er is iets mis gegaan met het versturen van het formulier.
Controleer of u alle velden (goed) heeft ingevoerd en probeer het nog een keer.

Vergelijkbare woningen

Verkocht

€ 875.000,- k.k.

Ambachtsherenlaan 19 3271 TM Mijnsheerenland
Verkocht

€ 725.000,- k.k.

Ridderlaan 10 3271 TG Mijnsheerenland
Verkocht

€ 625.000,- k.k.

Westdijk 12 3271 LM Mijnsheerenland