Vrieling Makelaars gebruikt cookies om de website naar behoren te laten werken, om functies voor social media te bieden en om onze website te analyseren. Op onze website kun je ons Cookiebeleid en AVG & Privacybeleid vinden.

Haagseveer 108
Rotterdam

ROYAAL WONEN IN HARTJE ROTTERDAM!
Dan is deze schitterende 5-kamer maisonnette, gelegen op EIGEN GROND, nabij de Meent en Coolsingel perfect! Op het Haagseveer geniet je volop van de...

Woonoppervlakte
97m²

Omschrijving

ROYAAL WONEN IN HARTJE ROTTERDAM!
Dan is deze schitterende 5-kamer maisonnette, gelegen op EIGEN GROND, nabij de Meent en Coolsingel perfect! Op het Haagseveer geniet je volop van de stedelijke gezelligheid. Even genoeg van de drukte? Dankzij de slimme indeling van het appartement met maar liefst 4 slaapkamers, een woonkamer met open keuken en het ruime balkon aan de waterkant, kom je zo weer helemaal tot rust in je eigen oase.

Genieten van alle stadse voorzieningen kan letterlijk voor de deur. De bruisende omgeving biedt een unieke mix tussen wonen, werken en leven en is daardoor voortdurend in beweging. De hotspots zijn in de directe omgeving: de Markthal, Kubuswoningen, Oude Haven, de Pannenkoekstraat en de Meent. Hier kun je optimaal genieten van leuke winkels, boetiekjes, restaurants, cafés en studio’s voor yoga en pilates. Voor een hapje en drankje is er ook genoeg keus!
De Ring A16/A13/A20 richting Dordrecht, Utrecht en Den Haag is in ca. 10 minuten te bereiken. Op steenworp afstand vind je Rotterdam Centraal Station waar o.a. de metro, tram, bus en trein vandaan vertrekken.

Met veel plezier laten wij dit fijne hoekappartement aan je zien, maak hiervoor een vrijblijvende bezichtigingsafspraak.

INDELING
BEGANE GROND
Vanuit de algemene entree is er toegang naar de lift, het trappenhuis en de brievenbussen. De bergingen zijn vanaf de straatkant toegankelijk.

TWEEDE VERDIEPING
Kom binnen en ontdek dit prachtige hoekappartement met twee verdiepingen. De entree biedt toegang tot de inpandige berging, meterkast, het toilet met fonteintje en de woonkamer met open keuken.

Dankzij de hoekligging en de vele ramen is de woonkamer heerlijk licht. Aan de achterzijde zijn de eethoek en gezellige zithoek gesitueerd. Je stapt eenvoudig het overdekte balkon op met vrij uitzicht over het water en de Lombardkade. Hier kun je ’s ochtends in alle rust genieten van de eerste zonnestralen en een heerlijk kopje koffie.

Aan de voorzijde is de nette keuken in dubbele wand opstelling. Deze is voorzien van een 5-pits gasfornuis, afzuigkap, combimagnetron, koel-vriescombinatie en een vaatwasser. Daarnaast is er een gezellige koffiecorner en opbergmogelijkheden in de vele kasten.

Vanuit de woonkamer is de 2e woonlaag bereikbaar.

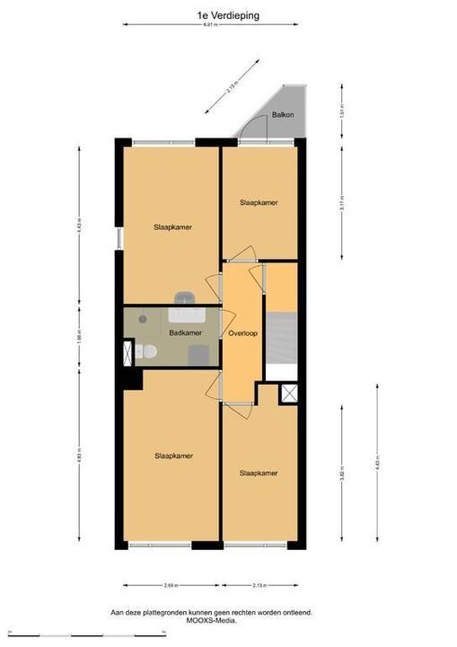
DERDE VERDIEPING
Deze verdieping is ingedeeld met vier comfortabele slaapkamers en een moderne badkamer. Alle slaapkamers zijn van goed formaat en in te delen als kinderkamer of thuis werkplek. De ouder slaapkamer heeft een praktische eigen wastafel.
De stijlvolle badkamer is uitgerust met een douchecabine, toilet, dubbel wastafelmeubel met verlichte spiegelkast en een aansluiting voor de wasmachine. Het geheel is afgewerkt in een tijdloze kleurstelling.

BERGING
In de onderbouw is een eigen berging gesitueerd. Deze is vanaf de straat toegankelijk en ideaal voor het stallen van fietsen en seizoenartikelen.

AFMETINGEN
Bekijk voor de afmetingen bijgevoegde plattegronden.

ALGEMEEN
- Bouwjaar: 1979
- Woonoppervlakte: 97 m²
- Maandelijkse VvE kosten €325,-
- Voorschot stookkosten €89,- p/m
- Eigen grond
- Energielabel: C
- Warm water en verwarming d.m.v. stadsverwarming
- Dubbele beglazing in houten kozijnen
- Het appartement is zowel bereikbaar via de lift als met de trap
- Eigen berging in de onderbouw aanwezig
- De oplevering is in overleg

BIJZONDERHEDEN
* Vanaf 1 januari 2023 zijn makelaars wettelijk verplicht een biedlogboek bij te houden bij de verkoop van bestaande woningen (en wanneer de koper en/of de verkoper een particulier is). Biedingen kun je per die datum, en indien gewenst, nog steeds mondeling met ons bespreken maar dien je daarna digitaal aan ons te bevestigen via jouw MOVE-account. Het biedlogboek is niet van toepassing bij de verkoop van nieuwbouw, recreatiewoningen, bedrijfswoningen, garageboxen, bouwkavels, woon-/bedrijfspanden en (agrarische) bedrijfsobjecten zonder woonbestemming.
* Bij het sluiten van een koopovereenkomst verklaar je je akkoord dat ondertekening van de koopovereenkomst digitaal plaatsvindt (met iDIN identificatie) door gebruikmaking van het platform van ondertekenen.nl.
* De koopovereenkomst wordt opgesteld conform het meest recente model dat is vastgesteld door de NVM, de Consumentenbond en Vereniging Eigen Huis en aangevuld met enkele aanvullende artikelen waaronder (maar niet uitsluitend) een ouderdoms-clausule, een clausule over de Meetinstructie en een clausule over de onderzoeksplicht van koper.
* Vanzelfsprekend staat het je vrij om, indien gewenst, een bouwkundige uit te nodigen de woning bouwkundig voor je te keuren teneinde jezelf een goed beeld te kunnen vormen van de bouwkundige staat van de woning.

ENTHOUSIAST?
Maak gerust een afspraak voor een vrijblijvende bezichtiging. Dat is mogelijk tijdens kantooruren, maar ook ’s avonds en op zaterdag. Bekijk onze website voor extra informatie over ons kantoor.

EIGEN NVM MAKELAAR
Vrieling Makelaars behartigt de belangen van de verkopende partij. Ons advies bij het kopen van jouw nieuwe woning is dan ook om je eigen NVM-aankoopmakelaar mee te nemen.

TOT SLOT
Deze presentatie is met zorg samengesteld, onder andere (maar niet uitsluitend) aan de hand van de door opdrachtgever (verkoper/verhuurder) aan makelaar verstrekte gegevens en tekeningen. Desondanks kunnen aan deze presentatie geen rechten worden ontleend en aanvaardt de makelaar of zijn opdrachtgever (verkoper/verhuurder) geen enkele aansprakelijkheid voor enige onvolledigheid, onjuistheid of anderszins -dan wel de gevolgen daarvan- van de in deze presentatie verstrekte informatie of elke andere aan de (kandidaat) koper of huurder (of andere belanghebbende) verstrekte informatie m.b.t. het te koop (of te huur) aangeboden object. Alle opgegeven maten en oppervlakten zijn daarnaast slechts indicatief. Mocht deze presentatie of andere verstrekte informatie m.b.t. het te koop (of te huur) aangeboden object vragen oproepen, dan nodigen wij je van harte uit deze onder onze (makelaar) aandacht te brengen.

THUIS IN DE REGIO, THUIS IN DE STAD
DÉ MAKELAAR VOOR DE HOEKSCHE WAARD & ROTTERDAM

Kenmerken

Overdracht

Prijs
€ 485.000,- k.k.
Bijdrage VVE
€ 325,-
Status
Verkocht
Oplevering
In overleg

Bouw

Soort appartement
Maisonnette, Appartement
Woonlaag
3
Soort bouw
Bestaande bouw
Bouwjaar
1979
Onderhoud binnen
Goed
Onderhoud buiten
Goed

Oppervlakten en inhoud

Woonoppervlakte
97m²
Inhoud
296m³

Indeling

Aantal kamers
5
Aantal slaapkamers
4
Aantal badkamers
1
Aantal verdiepingen
2
Voorzieningen
Mechanische ventilatie, TV-Kabel, Lift

Energie

Energielabel
C
Isolatie
Dubbel glas
Warm water
Stadsverwarming
Verwarming
Stadsverwarming

Buitenruimte

Ligging
Aan het water, In centrum
Balkon
Ja
Schuur
Inpandig
Faciliteiten schuur
Voorzien van elektra

Garage

Locatie

[ { "address": "Haagseveer 108", "zipCode": "3011 DB", "city": "Rotterdam", "lat": 51.9224074, "lng": 4.4822844, "heading": 0, "pitch": 0 } ]
[ { "featureType": "all", "elementType": "labels.text.fill", "stylers": [ { "saturation": 36 }, { "color": "#333333" }, { "lightness": 40 } ] }, { "featureType": "all", "elementType": "labels.text.stroke", "stylers": [ { "visibility": "on" }, { "color": "#ffffff" }, { "lightness": 16 } ] }, { "featureType": "all", "elementType": "labels.icon", "stylers": [ { "visibility": "off" } ] }, { "featureType": "administrative", "elementType": "geometry.fill", "stylers": [ { "color": "#fefefe" }, { "lightness": 20 } ] }, { "featureType": "administrative", "elementType": "geometry.stroke", "stylers": [ { "color": "#fefefe" }, { "lightness": 17 }, { "weight": 1.2 } ] }, { "featureType": "administrative.locality", "elementType": "labels.text.fill", "stylers": [ { "color": "#ff0000" } ] }, { "featureType": "landscape", "elementType": "geometry", "stylers": [ { "color": "#f5f5f5" }, { "lightness": 20 } ] }, { "featureType": "poi", "elementType": "geometry", "stylers": [ { "color": "#f5f5f5" }, { "lightness": 21 } ] }, { "featureType": "poi.park", "elementType": "geometry", "stylers": [ { "color": "#dedede" }, { "lightness": 21 } ] }, { "featureType": "road.highway", "elementType": "geometry.fill", "stylers": [ { "color": "#ffffff" }, { "lightness": 17 } ] }, { "featureType": "road.highway", "elementType": "geometry.stroke", "stylers": [ { "color": "#ffffff" }, { "lightness": 29 }, { "weight": 0.2 } ] }, { "featureType": "road.arterial", "elementType": "geometry", "stylers": [ { "color": "#ffffff" }, { "lightness": 18 } ] }, { "featureType": "road.local", "elementType": "geometry", "stylers": [ { "color": "#ffffff" }, { "lightness": 16 } ] }, { "featureType": "transit", "elementType": "geometry", "stylers": [ { "color": "#f2f2f2" }, { "lightness": 19 } ] }, { "featureType": "water", "elementType": "geometry", "stylers": [ { "color": "#e9e9e9" }, { "lightness": 17 } ] } ]

Zonnewijzer

Uw browser ondersteunt geen WebGL

Plattegronden

Interesse in deze woning?

Bel direct voor het maken van een afspraak of laat je gegevens achter.
Dan nemen wij contact met je op.

 

Uw bericht is naar ons verzonden. Wij nemen zo snel mogelijk contact met u op.

Er is iets mis gegaan met het versturen van het formulier.
Controleer of u alle velden (goed) heeft ingevoerd en probeer het nog een keer.

Beaudine Pietersen

Beaudine Pietersen

Assistent makelaar & Vastgoedstyliste

06 - 82 66 34 24
info@vrielingmakelaars.nl

Vergelijkbare woningen

Verkocht

€ 529.000,- k.k.

Catharina Roodzantpad 1 3056 AH Rotterdam
Verkocht

€ 450.000,- k.k.

Scheepstimmermanslaan 20 3011 BS Rotterdam
Verkocht

€ 512.000,- k.k.

Kruisplein 774 3012 CC Rotterdam